|
Комнат2
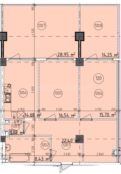
Площадь122.23 м²
Кухня14.65 м²
Этаж1 из 9
В Гагаринском районе Севастополя на берегу Черного моря находится апарт-комплекс премиум-класса Cosmos Stay — уникальный объект с доходностью свыше 23% годовых. Комплекс предлагает комфортное проживание и выгодные инвестиции. Рядом — три пляжа, парк Победы, набережная и аквапарк "Зурбаган", что делает локацию привлекательной. "Cosmos Stay" — уникальный комплекс с круглосуточным подогреваемым бассейном, спа-центром (сауна, хамам, массаж), спортивными площадками, детскими игровыми зонами и фитнес-залом. Гостям доступны тематические рестораны, бары, кофейни и кондитерские. Для отдыха предусмотрены уютные зоны с ландшафтным дизайном и удобная парковка (подземная и наземная). В продаже имеются апартаменты с полной отделкой, бытовой техникой, текстильным инвентарем и мебелью в жилом комплексе "Cosmos Stay" премиум-класса. Общая площадь составляет 122,23 кв.м., при этом кухня занимает 14,65 кв.м. Все окна выходят на одну сторону. В квартире есть лоджия и санузел. Высота потолков достигает 2.9 м. Есть отельное обслуживание: собственнику - 60%, оператору - 40%. Первые 3 года собственник не платит коммунальные услуги. Полная сумма в договоре, прямая продажа! Без комиссии, все оплачивает застройщик! ❌ С агентствами не сотрудничаем, просьба не звонить! Тип объектаОтдельная квартира Тип домаНовостройка Id объявления793658 Объявление добавлено22.01.2026 Объявление обновлено22.01.2026 Поделиться 66 004 200 ₽ Агент: Топ-менеджер АН 'Херсонес Недвижимость' Сообщение |
|













