|
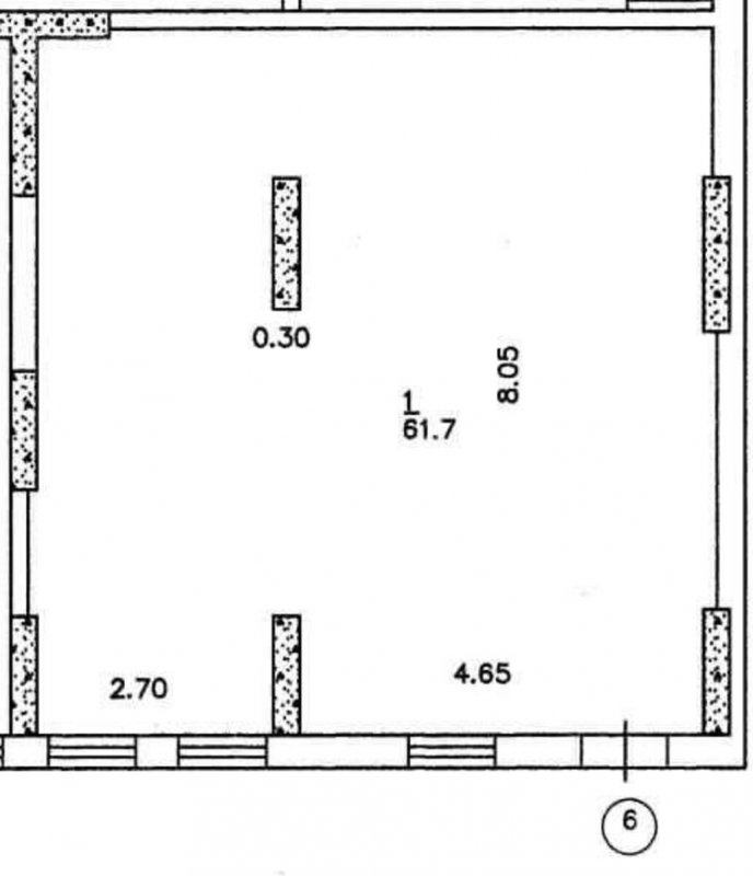
Area61 m²
Floor1 from 24
Велика знижка! Терміново, комерція ЖК 4U Академмістечко,Продається комерційна нерухомість в житловому комплексі 4U. Знаходиться лише за 10 хвилин пішки від м.Академмістечко. Площа 61 м2 Ступінь заселення будинку 70% Характеристики: Фасадна нерухомість, біля центрального входу в будинок, що забезпечує доступність і трафік. Потужність: 20 кВт, три фази, що забезпечує можливість встановлення широкого спектру обладнання та надійне живлення. Опис: Пропонується унікальна можливість придбати нежитлове приміщення у житловому комплексі комфорт класу 4U, що знаходиться в 10 хвилинах пішки від метро Академмістечко. Нерухомість ідеально підходить для розміщення різних видів мережевого бізнесу, зокрема салону краси, стоматології, медичної консультації, кафе, офісу або сервісного центру. Додаткові переваги: Ціна нижче ринка. Розташована в жилому будинку, що забезпечує потік клієнтів. Фасад біля входу в будинок. 4 фасадних вікна. Є право властності. Зручний доступ до центру міста та основних транспортних магістралей. Поблизу розташовані парковки для клієнтів. Ціна була 83000 зараз 74000 Розташування: Фасадне приміщення; Object typeShop Front entranceNo Add Id699562 Add date12.05.2024 Renewal date22.04.2026 Share 74,000 $ Agent: Валентин Анатольевич Agency 'IPrealty' Message |
|

















