Townhouse, 95 m², 3 floors, 5 rooms, 3 acres70,000 USDBelogorodka, Bіlogorodka, Krinichna • On map Rooms5
Area95 m²
Land3 acres
Floors3
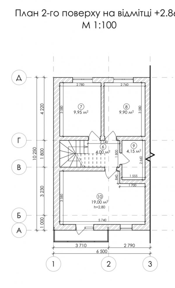
Продам Сучасні таунхауси двоповерхові 95 м2Сучасні таунхауси без комісії для покупця, Софіївська Борщагівка. Двоповерховий будинок 95 м2, третій поверх з вікнами, під велику кімнату на весь поверх. 2.6 сот. Електрика підключена 13 квт. Септики з переливом 8 м3. Керамоблок, фасад утеплений пінопласт. Перший поверх: простора кухня-вітальня, з виходом на терасу, технічна кімната, сан. вузол. Другий поверх: 3 спальні, гардеробна, сан. вузол. В пішому доступі: магазини, садочок, 5 хвилин зупинка транспорту, 4 км Київ. Object typeTownhouse Add Id700866 Add date01.06.2024 Renewal date01.06.2024 Share 70,000 $ Owner: Олександр Message |
|






































