House, 115 m², 1 floor, 3 rooms, 4 acres10,999,999 RUBSevastopol, Nahimovskiy, Fedorovskaya • On map Rooms3
Area115 m²
Living60 m²
Kitchen30 m²
Land4 acres
Floors1
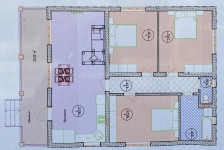
Продается новый дом в прекрасном месте - на улице Федоровская в микрорайоне Любимовка, рядом с одним из лучших пляжей в Севастополе. Этот район имеет развитую инфраструктуру, включающую в себя школу, детский сад, магазины и банки. До пляжа всего 10 минут ходьбы. Дом построен из качественного газобетона и имеет площадь 115 квадратных метров. Внутри расположены три спальни и раздельный санузел. Просторная кухня-столовая площадью 36 квадратных метров с панорамными окнами и выходом на террасу. В доме есть свет с мощностью 15 кВт, городская вода и канализация через септик. Газ подведен к границе участка. Внутренняя отделка стен выполнена до предчистовой стадии, проведена проводка для розеток и освещения, а также установлены теплые полы. На участке площадью 4 сотки разрешено индивидуальное жилищное строительство. Это отличный вариант для тех, кто хочет жить в красивом и уютном месте, недалеко от моря. Звоните и приходите на просмотр!
Object typeHouse Add Id712926 Add date08.12.2024 Renewal date04.04.2026 Share 10,999,999 ₽ Agent: Нина Сергеевна Agency 'Херсонес Недвижимость' Message |
|























