Townhouse, 120 m², 2 floors, 3 rooms, 2.5 acres94,000 USDBelogorodka, Shevchenkove, Shevchenkove • On map Rooms3
Area120 m²
Land2.5 acres
Floors2
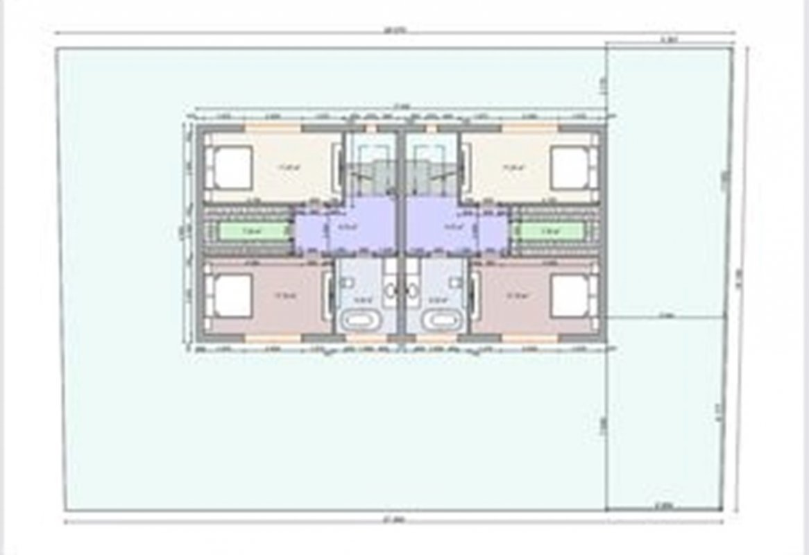
Таунхаус Шевченкове Білогородка Власник!Дуплекс 120 м2 в с. Шевченковому по вул Лікарська, залишився один, сусіди вже закінчують ремонт. Асфальтований підʼїзд, обжита вулиця. Ліс 100 метрів, озера 1 км. До м Житомирська 10 км, до Житомирської траси 1,5 км. Комунікації: Електрика 15 квт. Можливість підведенні газу. Септик (вигрібання яма). Скважина 50 м. Комплектація будинку: Побудований з газоблоку. Перекриття 1й з 2м поверхом Моноліт. Утеплювач стін пінопласт 100 мм. Утеплення даху мін вата 30 см. Вікна енергозберігаючі Salamander. Хороші вхідні двері з терморозривом. В будинку зроблено: Гіпсова машинна штукатурка. Розводка електрики. Опалення водяна тепла підлога по всьому будинку, котел, 2 окремі бойлери, розведена гаряча і холодна вода по будинку, встановленні інсталяції geberit в с/в, обладнана скважина. Виконана чистова стяжка. Бетонні сходи. Залишилось зробити фінальний ремонт, по дизайну майбутнього власника! (Можлива допомога з майстрами). Перегляд в будь який зручний час! Гарний торг! Object typeTownhouse Add Id743612 Add date26.02.2025 Renewal date26.02.2025 Share 94,000 $ Owner: Сергій Message |
|












































