House, 131 m², 2 floors, 5 rooms, 4 acres125,000 USDKryukovschina, Kryukіvschina, Zahisna • On map Rooms5
Area131 m²
Land4 acres
Floors2
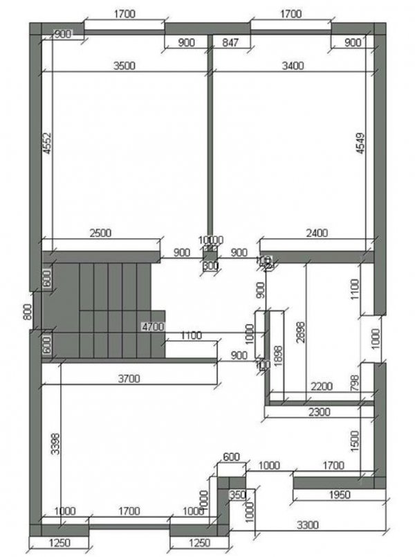
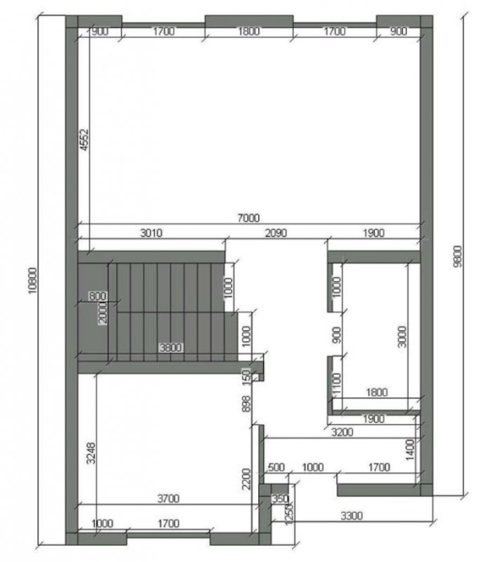
Продаж будинку у с. КрюківщинаПродаж нового будинку від власника. Продається просторий двоповерховий будинок у с. Крюківщина з сучасним плануванням. Чудовий варіант приватного будинку для проживання в передмісті Києва. Будинок знаходиться в дубовому гаю - урочище «Золотий дуб». Розвинена інфраструктура в пішій доступності Макдональдс, Сільпо, Спортивний клуб, ресторани, банки та багато іншого. Будинок розташований на ділянці площею 4 сотки, яка знаходиться в тихому затишному місці. Вулиця забудована, поруч нова котеджна забудова, приємні сусіди. У кухні встановлений великий склопакет з дверима для виходу на задній двір, де можливо облаштувати терасу чи зону барбекю. Будинок збудований з піноблоку, утеплений. Площа будинку 131 кв. м. + 3 кв. м балкон. Висота стелі на першому поверсі 3 м. на другому – 2,7 м. На 1 поверсі знаходиться: - простора кухня-вітальня 31,5 кв. м; - санвузол - 5,4 кв. м; - кімната - 12 кв. м; На 2 поверсі знаходиться: - кімната - 16 кв. м; - кімната - 15 кв. м; - кімната - 18,5 кв. м; - санвузол - 6 кв. м; - балкон – 3,3 кв. м. Комунікації – електрика, своя свердловина 56 м., каналізація (два септики з переливом). Object typeHouse Add Id758537 Add date02.09.2025 Renewal date02.09.2025 Share 125,000 $ Owner: Дмитро Message |
|


































