|
Площа50 м²
Поверх1 з 6
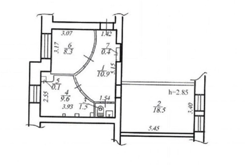
Здам. Офіс 50 м. кв. вул. Гоголя 27Здам. Офіс 50 м. кв. вул. Гоголя 27. Цоколь/6, 3-к., офісний ремонт. Н=3 м., стіни цегла 60 см. Меблі, техніка, вбудований сейф, інтернет, кондиціонер, охоронна сигналізація, ролети, лічильники на все. 15 000 грн/міс + 100 % опалення. + послуги агенції. т., Сергій, АН «Азбука жилья». www. azbuka. dp. ua, ПоложенняЧастина житлової будівлі Тип об'єктуОфіс Фасадний вхідНі Id оголошення755557 Оголошення додано09.11.2025 Оголошення оновлено13.04.2026 Поділитися 15 000 ГРН Агент: Сергей АН 'Азбука Жилья' Повідомлення |
|









































