4-кімн. кв., 88 м², 2/16 поверх125 000 USDКиїв, Оболонский, Иорданская (Гавро Лайоша), 9б • На мапі Кімнат4
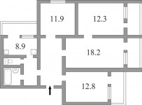
Площа88 м²
Житлова54 м²
Кухня8 м²
Поверх2 з 16
Просторная квартира в доме серии Т-4, функциональная планировка, 3 лоджии, обычное состояние, чистый ухоженный подьезд, два лифта, тихий зеленый двор, метро Оболонь 7 минут пешком, рядом все необходимое для комфортной жизни, школы, садики, супермаркеты, ТРЦ ДримТаун, озера. 3 лоджии. В двух комнатах мп окна. Квартира под ремонт. В доме консьерж. Во дворе детская площадка. Тихое место, далеко от дороги. Развитая инфраструктура - рядом школы, детсады, магазины. Хорошая транспортная развязка. Тип об'єктуОкрема квартира Id оголошення493678 Оголошення додано20.11.2017 Оголошення оновлено17.12.2021 Поділитися 125 000 $ Агент: АН Киевские квартиры АН 'Киевские квартиры' Повідомлення |
|









