Офіс, 142.7 м²345 000 USD • 0% комісіяКиїв, Голосіївський, Набережно-Корчуватська, 29 • На мапі ЖК Тиха Гавань Площа142.7 м²
Корисна142.7 м²
Поверх2 з 6
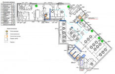
Офіс 142 кв. м. з видом на Дніпро. Новий ремонт. Без комісійних!Продаж комерційного приміщення з новим ремонтом на 22 робочих місця. Планування починаючи зі входу: - Openspace на 14 робочих місць + 2 санвузли; - окрема кімната на 5 робочих місць + серверна кімната; - окрема переговорна кімната; - кухня з барною стійкою; - окрема кімната на 3 робочих місця; - кабінет директора зі столом переговорів + сан вузол. В офісі встановлено сигналізацію Ajax, пожежну сигналізацію, відеоспостереження, система клімат-контролю. Кухня облаштована вбудованою посудомийною машиною, холодильником з морозильною камерою, чайником та кавомашиною. Барна стійка на 5 персон. Офіс обладнаний системою Wi-Fi, окрім того, до кожного робочого місця заведено окремий інтернет кабель та IP-телефонія (оцінять ті кому потрібна швидка стабільна мережа). Встановлено три телевізори на офіс, у тому числі в кабінеті директора для проведення конференцій, презентацій і не тільки. Продумано та практично розведено усі комунікації по офісу. Ви не побачите жодних проводів та комунікацій до робочих місць. Ремонт зроблений по дизайн проекту з дорогих якісних будівельних матеріалів та меблів, які замовлялись з Європи. Без комісійних для моїх покупців! Телефонуйте. ПоложенняЧастина житлової будівлі Тип об'єктуОфіс Фасадний вхідНі Тип будинкуНовобудова Id оголошення657803 Оголошення додано15.12.2022 Оголошення оновлено07.03.2023 Поділитися 345 000 $ Вадим Володимирович Повідомлення |
|
























































































