|
Площа1440 м²
Поверх1 з 2
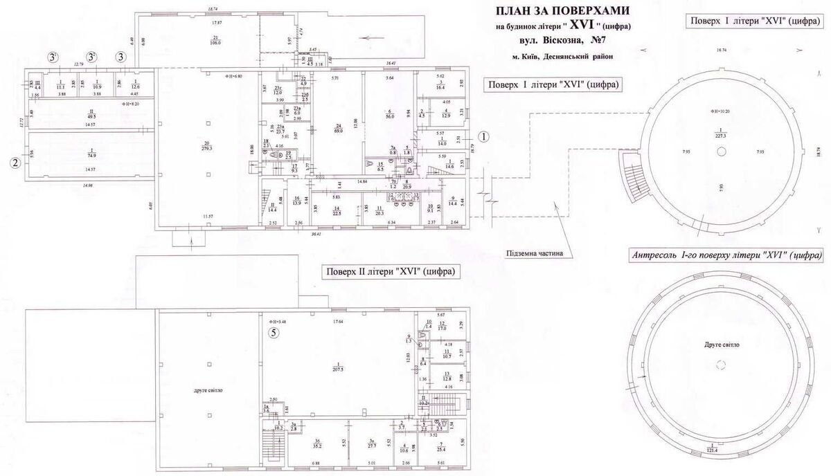
Продам офісно–виробничий комплекс 1440м2Капітальна, двоповерхова офісно-виробнича будівля загальною площею 1440 кв.м. з усіма комунікаціями: - холодне водопостачання (господарсько-побутове використання) - побутова та зливова каналізація. - гаряче водопостачання (5 санвузлів та душова, обладнані електробойлерами) - автономно-локальне опалення (з регульованим температурним режимом). - електропостачання (220/380В) із можливістю споживання до 500КВт. - система пожежної сигналізації цілодобового моніторингу, другого типу оповіщення із підключенням на пульт охорони. Пожежний гідрант. - Система проточно-витяжної вентиляції. - Побутові кондиціонери (спліт системи настінного типу). - оптико-волоконні телекомунікації Територія освітлена (нічне освітлення працює від датчиків). Поруч залізнична гілка з рампою, газ. Комплекс зручно розташований поряд ст. метро Лісова, Чернігівська, торгові центри Даринок, Епіцентр. Тип об'єктуПриміщення вільного призначення Фасадний вхідНі Id оголошення699577 Оголошення додано12.05.2024 Оголошення оновлено22.04.2026 Поділитися 990 000 $ Агент: Валентин Анатольевич АН 'IPrealty' Повідомлення |
|

























