|
Площа56 сот.
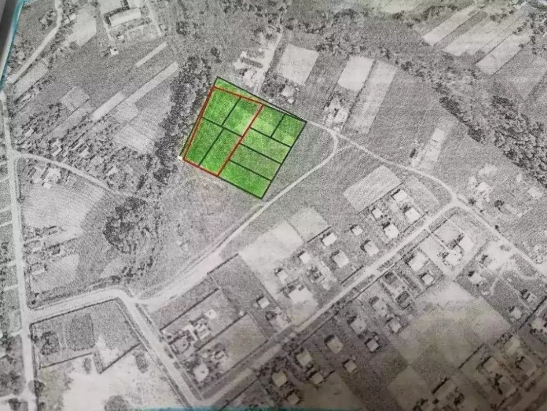
Продам земельну ділянку в с. Маковище 56 сотПродам земельні ділянки в с. Маковище. Загальна площа 56 соток. Зроблений поділ на чотири окремі ділянки по 14 соток. Асфальтований під'їзд, наявні комунікації поруч. Тихе місце. Деталі за телефоном. Призначення ділянкиІндивідуальне житлове будівництво Id оголошення700650 Оголошення додано28.05.2024 Оголошення оновлено28.05.2024 Поділитися 40 000 $ Власник: Володимир Повідомлення |
|








