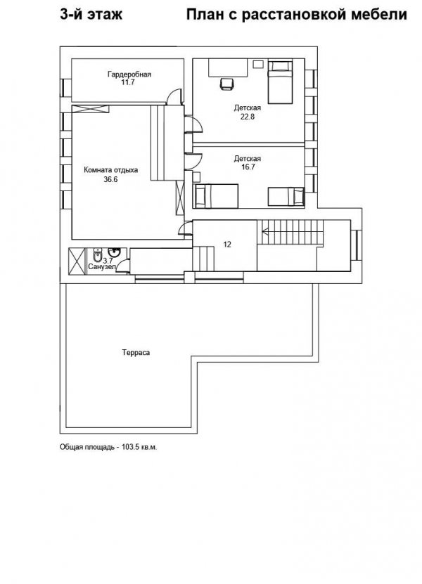
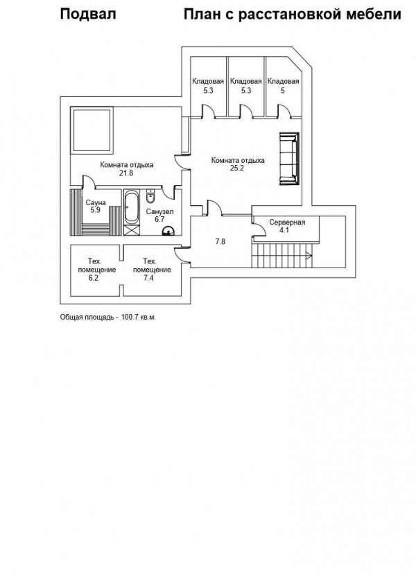
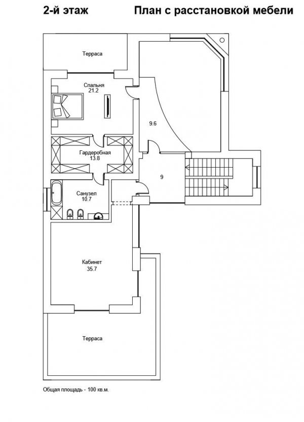
Будинок, 480 м², 2 поверхи, 5 кімнат, 4 спальні, 8 сот.350 000 USD • 0% комісіяОдеса, Киевский, Костанди • На мапі 12 станция Фонтана Кімнат5
Спалень4
Площа480 м²
Ділянка8 сот.
Поверхів2
Продажа дома на 12 станции Б. ФонтанаПродажа дома в Одессе! 12 станция Б. Фонтана Участок-8 соток Под отделочные работы. Бассейн Тип об'єктуБудинок Id оголошення704237 Оголошення додано22.03.2026 Оголошення оновлено22.03.2026 Поділитися 350 000 $ Агент: Лана Шармель Повідомлення |
|



























