|
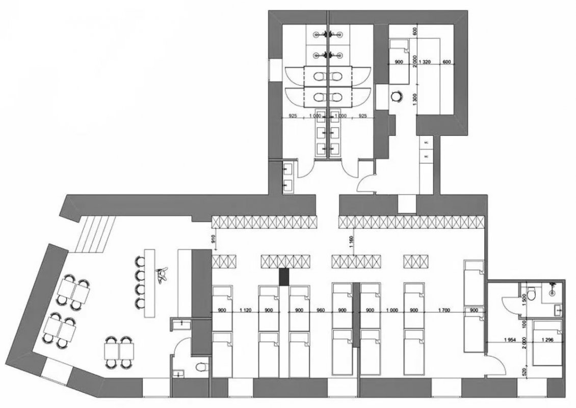
Площа193 м²
Поверх1 з 2
Продам фасадное помещение на Андреевском спуске в Киеве с действующим отелем.Продажа помещения площадью 193 м2 на фасаде первого этажа, в Топовой туристической локации Киева - начале Андреевского спуска, напротив Андреевской церкви, с действующим капсульным отелем. !!!Свет не отключают никогда!!! Царский дом, высота потолков 4,5 метра, 6 фасадных окон на Андреевскую церковь. Хороший ремонт. Памятник архитектуры, со всеми разрешениями. Назначение помещения - Гостинично-ресторанный комплекс. Огромный туристический трафик - начало пешеходной зоны. Продается помещение, а также сам работающий бизнес, принадлежат одному владельцу. В непосредственной близости самые топовые туристические локации Киева: Андреевская церковь, Пейзажная аллея, Андреевский спуск, Михайловский собор, Софиевский монастырь, Хрещатый парк, стеклянный мост, Воздвиженка, МИД, посольства, Подол и центр Киева. Большое количество кафе и ресторанов поблизости. Рейтинг отеля в Букинге 8,7 - Превосходно. В состав отеля входит: спальная часть - 22 капсулы, из них 4 двухместных и 18 одноместных; хозблок, мини-кухня и зона раздельных м и ж санузлов; большая барная зона при входе, рецепция и кофейня на вынос у входа, на фасаде. Заполняемость отеля в данный момент 100%, среднегодовая 75%, минимальная - конец января и февраль 50%. Средний чек 950 грн за капсулу. Кофейня и бар, отдельно, приносили очень хороший доход, кофейня продавала более 100 чашек кофе в день, сейчас не работает. Хороший ремонт, профессиональная система вентиляции и климат-контроля, дорогая гидроизоляция. В наличии есть новые двухместные капсулы, бойлеры, холодильники. Электричество - 70 кВт, 2 собственных электрошкафа на балансе, на Андреевском спуске. Отопление – автономное, централизованное отключено, было дорого. Свой электрокотел на отопление и горячую воду. Зимой коммуналка +10% от лета. При правильном подходе, в таком месте, обеспечит хороший, стабильный долгосрочный доход Возможна продажа помещения как с действующим отелем, так и без. Цена без отеля - минус 50.000 долл. Представитель владельца! Уважаемые потенциальные покупатели отеля! Просмотр отеля возможен с 12:00 до 15:00 ТОЛЬКО по предварительному согласованию по телефону указанному в объявлении!. Тип об'єктуМагазин Фасадний вхідНі Id оголошення744486 Оголошення додано06.03.2025 Оголошення оновлено22.04.2026 Поділитися 599 000 $ Агент: Валентин Анатольевич АН 'IPrealty' Повідомлення |
|

































