|
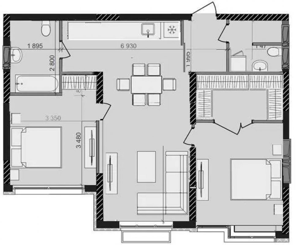
Кімнат3
Площа74 м²
Кухня25 м²
Поверх8 з 23
3-к ЖК Perfect TownПродаж Вікна виходять на парк та на дорогу У квартирі частково поштукатурено стіни та проведені інженерні роботи: розведено електропроводку воду та каналізацію. Перероблено планування під трьох-кімнатну квартиру
В комплексі є паркінг на 322 місця.
Біля комплекса розвинена інфраструктура, є все необхідне для комфортного проживання. Поруч дитячи садочки Start Kids, Монтессорі на Теремках, Антошка, Индиго, Малыш Аристотель, Ліко-школа, школа №186. Супермаркети Ашан, Nous, Сельпо, Billa, Varus. Спортклуби Move Spor, Sport Life з басейном, iGym, відділення Нової пошти, Ресторан Євразія.
метро Васильківська 12 хвилин пішки.
Можливий продаж по переуступці
Перегляди за домовленістю. Тип об'єктуОкрема квартира Id оголошення747153 Оголошення додано18.03.2025 Оголошення оновлено19.03.2025 Поділитися 97 000 $ Агент: MirKvartir АН 'Estate.kiev.ua' Повідомлення |
|







