Приміщення вільного призначення, 796 м²265 000 USD • 0% комісіяБровари, Броварской, А. Луценка, 26а/1 • На мапі Площа796 м²
Поверх1 з 2
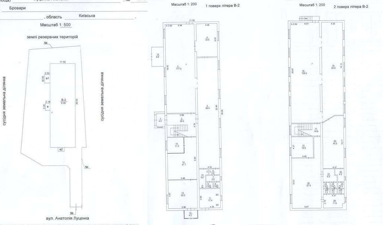
Продаж окремої будівлі на вул. А. Луценка, 26а/1, м. БровариПродаж будівлі вільного призначення, з власною ділянкою у м. Бровари, на вул. А. Луценка, 26а/1, (на межі Києва, поруч з трасою Е95). Загальна площа будівлі — 796 м² Закрита, огороджена та асфальтована територія. Зручне розташування — зупинка транспорту поруч. Земельна ділянка - 0,1595 Га (приватна власність) Призначення: Землі промисловості, транспорту, зв’язку, енергетики, оборони та іншого призначення. Вид діяльності: 11.02 Для розміщення та експлуатації основних, допоміжних та підсобних будівель та споруд підприємств переробної, машинобудівної та іншої промисловості. Зараз будівля використовується для виробництва взуття. Обладнання не входить у вартість будівлі. Без комісії для покупця. Для ріелторів партнерська угода, без дублювання в рекламі. Дзвоніть та записуйтеся на перегляд. ПоложенняОкремо стояча будівля Тип об'єктуПриміщення вільного призначення Фасадний вхідНі Id оголошення751738 Оголошення додано27.04.2025 Оголошення оновлено02.07.2025 Поділитися 265 000 $ Агент: Дмитрий Повідомлення |
|








































