|
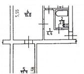
Кімнат1
Площа33 м²
Житлова16 м²
Кухня6 м²
Поверх4 з 4
Предлагается к продаже однокомнатная квартира с видом на море. Небольшая квартира с балконом, бюджетный вариант. Отлично подойдет тем кто хочет жить у моря. Отличная инфраструктура: рядом в трех минутах ходьбы Площадь Захарова а это магазины, рынок, аптеки, автобусная остановка, причал для катеров и многое другое. Идеальный вариант для тех, кто предпочитает жить в квартире с ремонтом под себя. Не упустите свой шанс жить в шикарном месте! Звоните!
Тип об'єктуОкрема квартира Id оголошення752411 Оголошення додано08.05.2025 Оголошення оновлено27.04.2026 Поділитися 5 900 000 ₽ Агент: Альбина Борисовна АН 'Херсонес Недвижимость' Повідомлення |
|

















