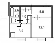
1-кімн. кв., 35 м², 1/16 поверх41 000 USD • 2.5% комісіяКиїв, Деснянський, Червоної Калини проспект, 5 • На мапі Троєщина Кімнат1
Площа35 м²
Житлова12 м²
Кухня8.5 м²
Поверх1 з 16
Продам 1 кімнатну квартиру просп. Червоної Калини 5. ТроєщинаСанвузол роздільний, просторий передпокій, металопластикові вікна, решітки. Шафа купе. Лічильники води, тамбур. Вікна на парк. Зручна транспортна розв'язка. Розвинена інфраструктура. Можливий торг. БалконНі ЛоджіяНі Роздільний санвузолТак, 1 Суміщений санвузолНі РемонтКосметичний ОпаленняЦентральне Горяча водаЦентральна Гараж або паркінгНі Тип об'єктуОкрема квартира Тип проектуПанельний Id оголошення755180 Оголошення додано07.04.2026 Оголошення оновлено14.04.2026 Поділитися 41 000 $ Агент: Лисюк Марія Миколаївна АН 'Купидом Плюс' Повідомлення |
|



















































