|
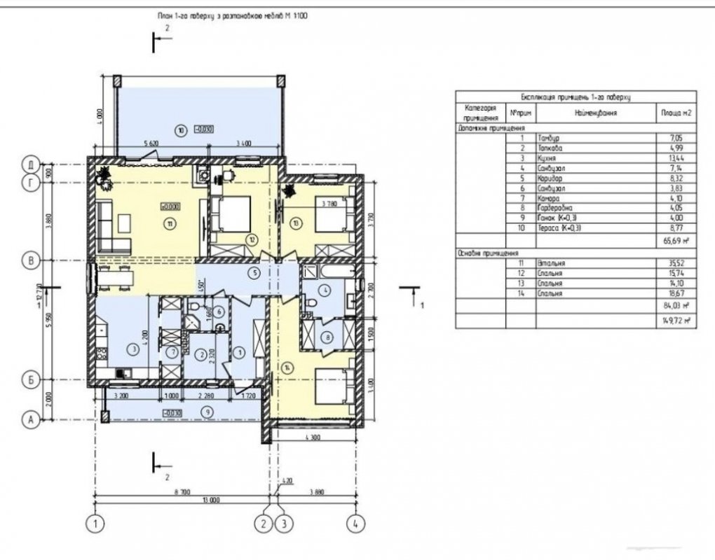
Кімнат3
Площа144 м²
Ділянка9 сот.
Поверхів1
Будинок з ідеальним плануванням БориспільВітаю. Якщо ви збираєтеся будувати власне житло, та не бажаєте чекати пів року, так як основні та чорнові роботи вже виконані. Тоді цей будинок для Вас! Будинок мрії, чому? ви спитаєте! А тому що: Ідеальне планування. Затишне тихе місце. Гарні сусіди. Зручна транспортна розв'язка. Можливість збільшити ділянку. Газ по вулиці, проект та підключення без питань. Місце для стоянки авто біля двору також враховано. Поряд дитячий майданчик. Є де прогулятися з домашніми улюбленцем, та поганяти на квадроциклі. А найголовніше всі технологічні процеси з будівництва були виконані на 100%. Якісний фундамент, загальна висота 1, 3 метри, гідроізоляція, скважина для води 72 метри, септик з переливом для нечастого викачування, враховано комунікації для альтернативного опалення, камін з повітряними рукавами в кожну кімнату, закладні труби на горище для кабелів під відеонагляд та для сонячних панелей, а також кут даху зразу розрахований під сонячні панелі загальною потужністю 25 квт. Просторий чердак, як для зберігання речей, так і для того, щоб зробити розумну вентиляцію. Велика котельня, зразу розрахована під встановлення очистки води та альтернативних джерел живлення. Зразу виведений кабель під генератор, а також на домофон та відкатні ворота. Виконано захисний контур заземлення з вимірами та протоколами. Всі роботи виконані професіоналами своєї справи та якісними матеріалами. Такого будинку за якістю в Борисполі ви точно не знайдете. Є повна документація та фото з самого початку будівництва. Залишається виконати тільки чистові внутрішні роботи на ваш смак та дизайн: електрика, плитка, штукатурка, малярка. Також дуже важливо що на даному етапі можливо корегувати розташування стін та дверей, якщо вас не влаштовує планування. Є майстри які доведуть роботу що так називають під чистову, заходь живи. З повагою, чекаю на дзвінки. Тип об'єктуБудинок Id оголошення757424 Оголошення додано13.08.2025 Оголошення оновлено13.08.2025 Поділитися 89 000 $ Власник: Юрій Повідомлення |
|
















































