Будівля, 5718 м²5 145 300 USD • 5% комісіяДніпро, Шевченковський, Святослава Хороброго • На мапі центр Площа5718 м²
Поверх1 з 5
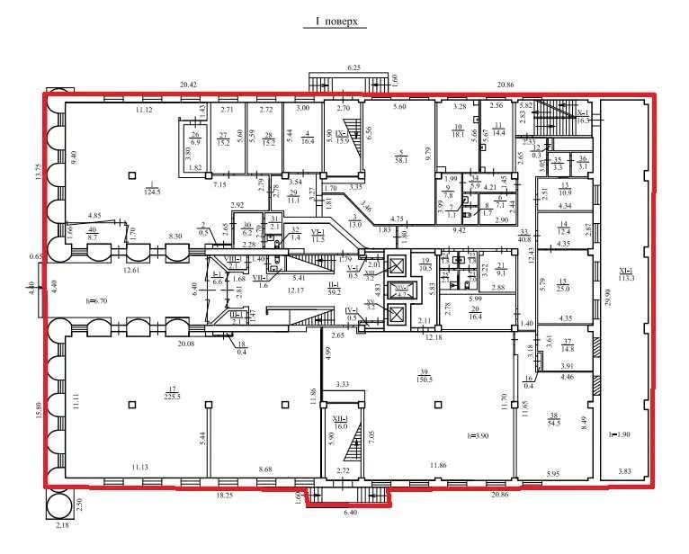
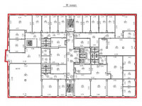
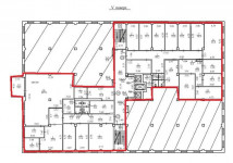
Продам. Будівлю 5718 м. кв. 37 соток. Центр. вул. Святослава ХраброгоПродам. Торгово-офісна будівля 5718 м. кв. 37 соток. Центр. вул. Святослава Храброго, кут вул. Січових Стрільців. П'ять поверхів. 1-й поверх під магазин, банк, 2-5-й поверх - офісна частина. Мансарда. На землю кадастр 1210100000:02:388:0023. Заведено 380 Квт. Автономне газове опалення. Охорона, сигналізація, кондиціонування, ліфт. Підземний паркінг на 16 авто, парковка у дворі на 35 авто. 5 718 300 у. о. + послуги агенції. т., Сергій, АН «Азбука житла». www. azbuka. dp. ua, ПоложенняОкремо стояча будівля Тип об'єктуБудівля торгово-офісна будівля Фасадний вхідНі Назва бізнес-центруЦітадель Id оголошення758092 Оголошення додано18.08.2025 Оголошення оновлено13.05.2026 Поділитися 5 145 300 $ Агент: Сергей АН 'Азбука Жилья' Повідомлення |
|

















































