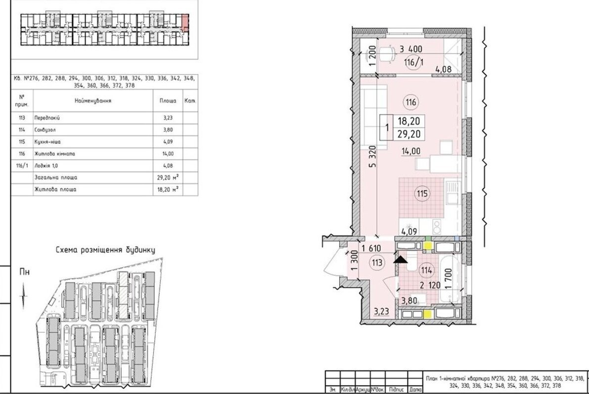
1-кімн. кв., 29 м², 6/21 поверх54 000 USDКиїв, Голосеевский, Михайла Максимовича в (Онуфрія Трутенка), 24А • На мапі Кімнат1
Площа29 м²
Житлова18 м²
Кухня4 м²
Поверх6 з 21
1-кімнатна, Михайла Максимовича вул. (Онуфрія Трутенка), 24А, Голосіївський1-кімнатна квартира, Михайла Максимовича вул. (Онуфрія Трутенка), 24А, Голосіївський район. Метраж 6/21, поверховість 6/21. ЖК Нова Англія Продаж 1 кімн квартиру- студію, 29, 5 КВ м, 6/21, будинок введен в експлуатацію, Ноттінгем, готова до ремонту, вид на Київ. Індивідуальне опалення, своя котельня, стан після будівельників, підземний паркінг. Переваги комплексу: Закрита територія з охороною і відеоспостереження. Власна інфрастуктура: магазини, кавярні, аптеки, ресторан, відділення банку, пошла, супермаркет, зони відпочинку, школа та садок 10 хвилин пішки, до Метро Васильківська 15 хвилин пішки, укриття в підземному паркінгу. Спеціаліст Ольга
+XXXXXXXXXXXX Тип об'єктуОкрема квартира Id оголошення763312 Оголошення додано12.10.2025 Оголошення оновлено21.05.2026 Поділитися 54 000 $ Агент: Ольга Мусатюк АН 'АН КУБ' Повідомлення |
|











