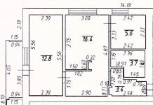
2-кімн. кв., 46.3 м², 2/5 поверх10 800 000 РУБСевастополь, Гагаринский, Юрия Гагарина проспект,, 6 • На мапі Кімнат2
Площа46.3 м²
Житлова26.7 м²
Кухня6.5 м²
Поверх2 з 5
Об объекте Уютная 2‑комнатная квартира площадью 46,3 м² на 2/5 этаже. Окна во двор — тихо и зелено . Дом — панельный, центральное отопление, во дворе открытая парковка . Чистый подъезд, спокойные соседи. Дом ухожен, своевременно обслуживается. Планировка и состояние Комнаты изолированные, жилая 26,7 м²; кухня 6,5 м². Высота потолков 2,5 м. Качественный евроремонт, продаётся с мебелью ️. Санузел совмещённый, есть балкон. Теплые полы в ванной комнате. Перепланировка узаконена. Кондиционер. С внешней стороны - утеплитель стен. Инфраструктура и транспорт Рядом в 5 минутах ходьбы Новый Херсонес, детские сады №34 и №93, школа Олимпийского резерва и школа №35, детская поликлиника №2, планетарий, ТЮЗ, парк им. Анны Ахматовой с выходом на пляж Солнечный, также рядом находится пляж Песочный. Магазины, почта, аптеки, автобусная остановка - все "под рукой". До центра - 10 минут на транспорте. Условия сделки Возможна ипотека, быстрый выход на сделку, документы готовы. Подходит для семьи или сдачи в аренду. Один собственник. Звоните прямо сейчас, что бы договориться о просмотре и выяснить все детали! Тип об'єктуОкрема квартира Id оголошення796067 Оголошення додано17.03.2026 Оголошення оновлено17.03.2026 Поділитися 10 800 000 ₽ Агент: Менеджер АН 'Херсонес Недвижимость' Повідомлення |
|









































