|
Площа34 м²
Корисна27 м²
Поверх2 з 9
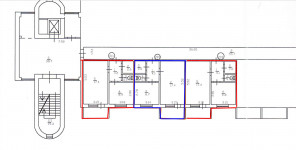
Продаж 3 невеликих офісів, м. «Академмістечко", вул. Василя Стуса, 35-37Продаж офісів біля метро — вул. Василя Стуса, 35–37 (5 хв пішки до метро)! Пропонуються до продажу три компактні офісні приміщення у дев’ятиповерховій офісній будівлі за адресою вул. Василя Стуса, 35–37. Офіси розташовані на 2 поверсі, фасадне розташування. Загальна площа трьох приміщень становить 101, 5 м². Площі окремих офісів: 33,8 м² 33,7 м² 34 м² Можливий продаж офісів поштучно. Кожне приміщення має раціональне планування, що дозволяє належним чином організувати їх використання, а саме: - два окремі кабінети - власний санвузол - встановлений кондиціонер - балкон Будівля обладнана пасажирським ліфтом. Переваги розташування: - 5 хвилин пішки до метро Академмістечко; - зручна транспортна розв'язка; - поруч зупинки громадського транспорту, торгівельний центр «Академ сіті», продуктовий магазин «Varus», великий фітнес-центр, багато кафе та ресторанів, банківські установи, поштові відділення, заклади надання побутових послуг тощо. Біля будівлі розташовані дві автостоянки Приміщення підходять для: - офісу невеликої компанії; - консультаційних, юридичних, бухгалтерських послуг; - медичного або косметологічного кабінету; - закладів надання побутових послуг тощо. Три офіси розташовані поруч та мають подібну площу (33–34 м²), що дозволяє використовувати їх у різних форматах: - окремі офіси для різних компаній - один офіс + два орендні приміщення - офіс для компанії з кількома відділами Компактні офіси біля метро — це стабільний формат орендного бізнесу. Такі офіси мають попит серед орендарів і можуть бути використані як готовий об’єкт для орендного бізнесу, а також можуть стати офісним розташуванням власного бізнесу. Офіси такого формату не часто з’являються у продажу, тому не втрачайте таку можливість. Ціна Вказана ЗА 1 М. КВ. (для продажу усіх трьох приміщень). ПоложенняЧастина нежитлової будівлі Тип об'єктуофісний центр Фасадний вхідНі Id оголошення796166 Оголошення додано20.03.2026 Оголошення оновлено20.03.2026 Поділитися 1 280 $ Агент: Эдуард Сковронский Повідомлення |
|
















