|
Area192 m²
Floor1 from 9
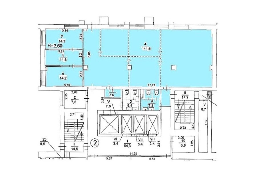
Без% Оренда офісу 194 м2, вул. Болсунівська 8, метро ЗвіринецькаБез% Оренда офісу 194 м2, вул. Болсунівська 8, метро Звіринецька Здам офіс, Печерський р-н, м. Звіринецька, вул. Болсунівська 8 Бізнес центр, надання юридичної адреси Офіс зі своєю вхідною групою, 1 поверх Офіс 194 кв. м, 7 кабінетів, офісний ремонт Відмінна транспортна розв'язка, метро Звіринецька 10 хв пішки. Орендна ставка 320 грн/м2 + комунальні. Здає юр. особа з Пдв Своя парковка, тиха і охоронювана територія Вартість оренди 62 080 грн. Без Комісії! Прямий договір від власника Детальна інформація Тел. Юрій льга PositionBusiness center Object typeOffice Front entranceYes Name of business centerBastіon Add Id792745 Add date19.12.2025 Renewal date20.04.2026 Share 62,080 UAH Agent: Юрий Новиков Agency 'Левобережка' Message |
|

























