Office, 986 m²493,000 UAH per month • 0% agent-feeKiev, Dnіprovskiy, Sverstyuka, 2А • On map Лівобережна Area986 m²
Floor3 from 8
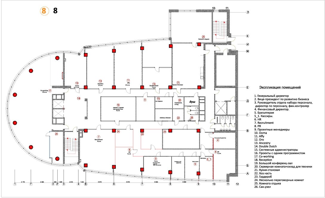
Без % Оренда офісу 986 м2, БЦ ЛівобережнийБез % Оренда офісу 986 м2, БЦ Лівобережний Дніпровський р-н, вул. Євгена Сверстюка 2А Свій генератор! Бізнес центр, класу В, 3 этаж Площа 986 кв. м, кабинети, своя кухня, туалет Вільне планування, офісний ремонт, кондиціонери Фасадний вхід, відеоспостереження, охорона, парковка Орендна ставка 500 грн/м2 + експлуатацію + счетчики Вартість оренди 493 000 грн Без комісії! Деталі за тел. Юрій Новіков PositionBusiness center Object typeOffice Front entranceYes Name of business centerLіvoberezhniy Add Id795434 Add date10.03.2026 Renewal date20.04.2026 Share 493,000 UAH Agent: Юрий Новиков Agency 'Левобережка' Message |
|



































