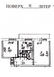
2-rooms apt., 44 m², 2/9 floor72,500 USD • 5% agent-feeKiev, Obolonskiy, Arhipenka, 10в • On map Оболонь Rooms2 separate
Area44 m²
Living27 m²
Kitchen7 m²
Floor2 from 9
Продам 2-к квартиру на АрхипенкаЭксклюзивное предложение! Продам 2-к квартиру с мебелью на Оболони возле Парка! Находиться по адресу ул. Александра Архипенко 10в. Квартира размещена на 2-м этаже 9-этажного тёплого дома и занимает площадь 44м2. Внутри хорошее жилое состояние. Удобная и правильная планировка квартиры позволит Вам чувствовать себя комфортно: - уютная спальная комната укомплектована кроватью и шкафом купе - гостиная с большими раскладном диваном и рабочим столом - кухня полной комплектации - просторный коридор в котором стоит шкаф купе для Вашей верхней одежды и обуви - раздельный с/у с ванной и бойлером - большой застекленный балкон Живя в этой квартире у Вас всё будет под рукой, так как вся возможная инфраструктура находиться в пешей доступности! Рядом множество магазинов, аптек, ресторанов, парк, набережная, школа, детский сад и тд. Удобная транспортная развязка! До метро Оболонь 15 минут пешком, 10 минут к Вlockbuster, перешли дорогу и вы уже на набережной. Квартира которая прекрасно подойдёт как для жизни, так и под арендный бизнес. Звоните! Более детальная информация по телефону. Проведу просмотр в удобное для Вас время. Ключи на руках! BalconyYes, 1 LoggiaNo Windows overlookThe street Separate bathroomYes, 1 Combined bathroomNo RenovationCosmetic HeatingCentral Hot water supplyBoiler Object typeSeparate apartment Project typeCzekh RampNo Add Id592579 Add date18.02.2022 Renewal date18.02.2022 Share 72,500 $ Agent: Biloshytska Iryna Agency 'Best Realty Use' Message |
|















