Townhouse, 170 m², 3 floors, 5 rooms, 2 acres117,500 USDGostomel, Gostomel, provulok Yuvіleyniy • On map Rooms5
Area170 m²
Land2 acres
Floors3
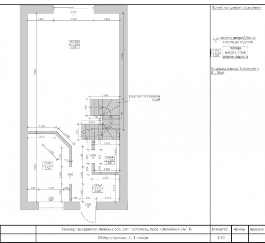
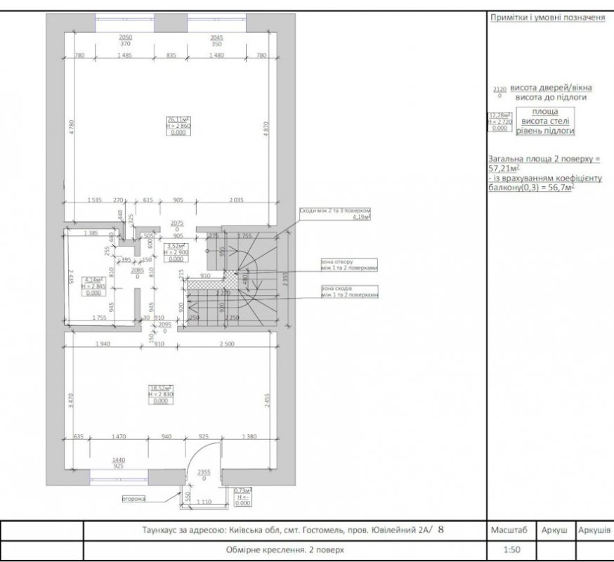
Триповерховий таунхаус з видом на озеро в ГостомеліПродається триповерховий таунхаус з видом на озеро в Гостомелі Просторий триповерховий таунхаус у затишному ЖК «Рів’єра» в Гостомелі від власника. Ідеальне розташування в 10 хвилинах пішки від церкви Покрови Пресвятої Богородиці, практично в центрі. Є вихід до озера з власної ділянки біля тауна, щоб пити гарячу каву на пірсі під плескіт рибок. Основні характеристики: - Площа ділянки: 2.16 сотки. - Загальна площа таунхаусу: 170,44 м2. - Поверхи: три рівні з функціональним плануванням. Планування: Перший поверх: - Велика вітальня з кухнею (36,5 м2) з панорамними вікнами. - Коридор. - Окрема житлова кімната (або кабінет). - Санвузол (3,5 м2). Другий поверх: - Дві великі кімнати (26 м2 з панорамними вікнами і 18,5 м2). - Санвузол (4,1 м2) з ванною-джакузі. - Балкон. Третій поверх: - Окрема кімната (14 м2) з власним санвузлом (3,5 м2). - Приміщення під сауну або комору (4 м2). - Велика тераса (25,5 м2) із захоплюючим краєвидом на озеро. Додаткові зручності: - Сходи: зручні та широкі між поверхами. - Власна парковка: на 2 авто і простір під газон. - Власна ділянка з виходом до озера: з можливістю риболовлі в 50 м від будинку. Інфраструктура: близькість до центру та зручна транспортна розв'язка. Ремонт і обробка: - Частковий ремонт під себе (2021 р.) після забудовника повністю переробили електрику, сантехніку, вентиляцію. - Встановлені повітропроводи для підключення 5 кондиціонерів. - Перероблена гідроізоляція даху, захист від грибка. - Встановили персональний дренаж з автоматичним насосом (з датчиком рівня) для відкачування ґрунтової води, дощове водовідведення та гідроізоляцію фундамента. - Тепла підлога на першому поверсі та у двох санвузлах (1-го та 2-го поверхів). - Не поклали підлогу, хоча сама підлога є в наявності на весь таун – це якісні дерев’яні оброблені на замовлення дошки (дизайн дошок, як палуба дорогої яхти). - Якісно зроблені і пофарбовані стіни. - Всі плиточні роботи зроблені, є три санвузли на кожному поверсі, є місце під електрокамін. - Вбудована ванна-джакузі на 2-му поверсі. Обладнання: - Газовий котел. - Система теплої підлоги. - Бойлер. - Насос для стабільного тиску води. - Вбудовані інсталяції до унітазів та батареї. - Електрична лінія з окремим автоматом виведена на ділянку для підключення генератора. - Назовні виведено водопостачання для поливу та окремо на терасу для наповнення басейну на терасі 3-го поверху. - В кімнаті на другому поверсі біля панорамних вікон широкі підвіконня з підігрівом. Особливості: - Весь таун має вдале планування приміщень у порівнянні із багатьма іншими з подібним розміром. Під час війни таунхаус не постраждав. Усі роботи виконані місцевими майстрами з Ірпеня, які готові надати схеми та пояснення щодо виконаних робіт та гарантувати якість. Відео за посиланням - Ціна: 108,5 тис євро. Можливий торг до приємної ціни за таку перлину Гостомельської Рів’єри! Зацікавилися? Зв'яжіться зі мною для детальнішої інформації та організації перегляду! Тел. +38 ( Object typeTownhouse Add Id703099 Add date10.07.2024 Renewal date10.07.2024 Share 117,500 $ Owner: Марина Message |
|














































