|
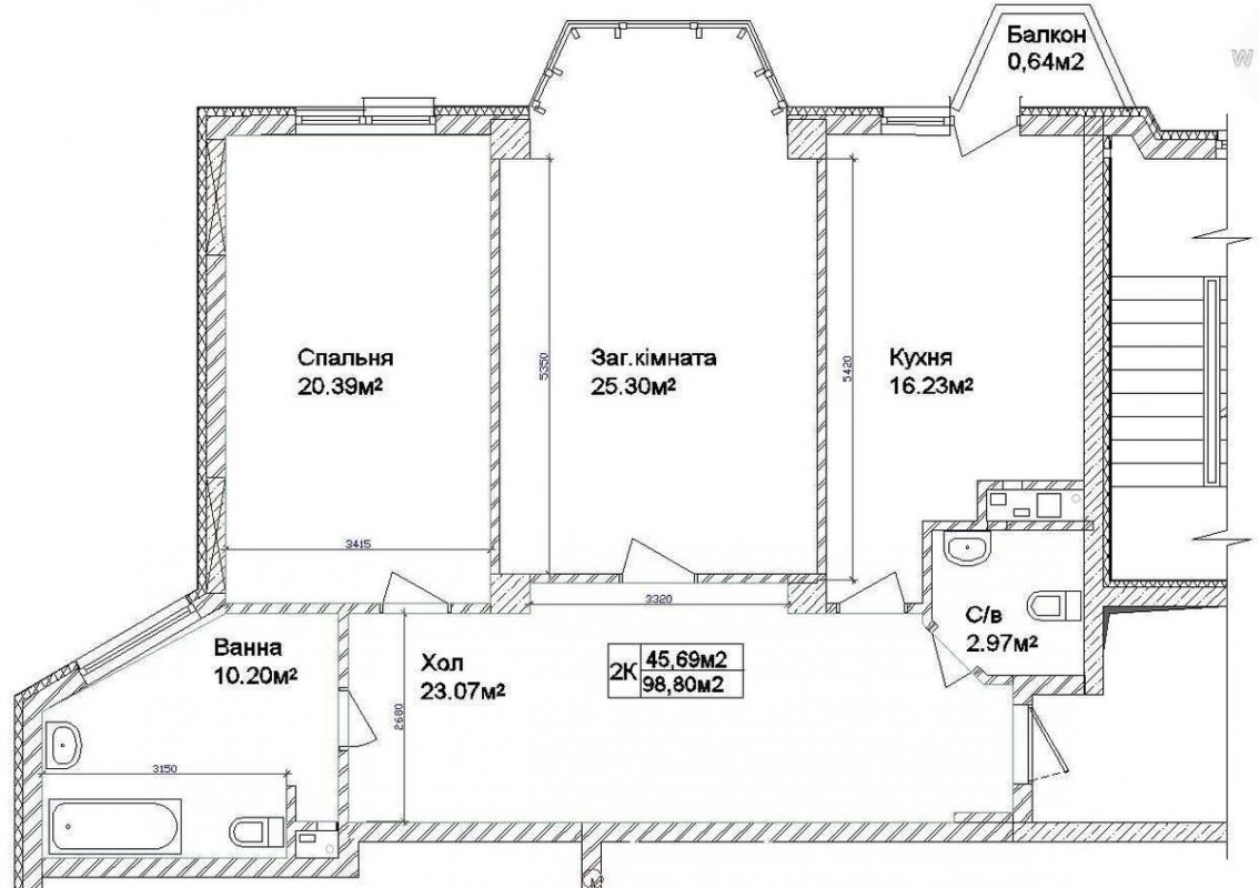
Rooms2 separate
Area99 m²
Kitchen16 m²
Floor8 from 16
Продаж 2К в ЖК Сонячна Брама.Окрема квартира, будинок введено в експлуатацію - українська цегла, в квартирі 2 кімнати, висота стелі 2.7 метра. В квартирі 4 вікна, вид з вікон на місто. Квартира стандартна, планування кімнат роздільне. Немає газу, кухонна плита електрична. Є гаряча вода. Є опалення. В квартирі 2 роздільних санвузла, туалет/ванна. Є сантехніка. Проведені металопластикові труби, нові. Вхідні двері броньовані. Є покриття підлоги - ламінат, паркет, плитка, є підігрів підлоги. Є балкон не засклений. Лоджії немає. Стан стін - ремонту не потребують, стеля натяжна. Вікна алюмінієві, нові. Міжкімнатні двері деревяні, нові. Тамбур окремий. В квартирі є кондиціонер, сигналізація, сейф, душова кабіна. Будинок побудований в 2009 році. У квартири 2 власника, прописані 3 людини. Загальний стан квартири - чудовий стан. Охорона. Документи на квартиру: договір купівлі-продажу. Терміново. Нові. Не засклений. Інтернет дротовий (кабельний) Кухня, яку плануємо залишити, укомплектована: електрична плита, духовка, кавоварка, мікроволновка. витяжка, подрібнювач вбудований в мийку, фільтр, холодильник. Тип будинку: Житловий фонд 2011-2020-і; Назва ЖК: Сонячна брама; Клас житла: Бізнес; Побутова техніка: Посудомийна машина, Холодильник, Мікрохвильова піч, Духова шафа, Плита, Пральна машина; Мультимедіа: Wi-Fi; Комфорт: Кондиціонер, Ванна, Ліфт, Пожежна сигналізація, Підземний паркінг, Гостьовий паркінг, Підігрів підлоги, Меблі на кухні, Панорамні вікна, Паркувальне місце, Охорона території, Грузовий ліфт, Душова кабіна, Сигналізація, Гардероб; Комунікації: Центральний водопровід; Інфраструктура (до 500 метрів): Відділення банку, банкомат, Автовокзал, Кінотеатр, театр, Аптека, Лікарня, поліклініка, Дитячий садок, Дитячий майданчик, Відділення пошти, Ресторан, кафе, Школа, Супермаркет, ТРЦ; Ландшафт (до 1 км.): Ліс; Object typeSeparate apartment Add Id709126 Add date28.04.2023 Renewal date29.04.2023 Share 110,000 $ Agent: Валентин Анатольевич Agency 'IPrealty' Message |
|



























