|
Rooms3
Area92 m²
Kitchen34 m²
Floor18 from 21
3к, 92м, ЖК Патріотика, Цегляний!Продаж 3-кімнатної квартири в ЖК Патріотика
Будинок Бориса Гмирі 14А, поверх 18, 2018 року будівництва, загальна площа — 92 м #178;.
У квартирі виконаний базовий (чорновий) ремонт: перепланування, розведена сантехніка, електрика, встановлені теплі підлоги, зроблена стяжка, оштукатурені стіни. Все готове до чистового ремонту — плитка, стелі, шпалери, ламінат. Отже, ви можете самостійно обрати матеріали та облаштувати інтерєр на свій смак.
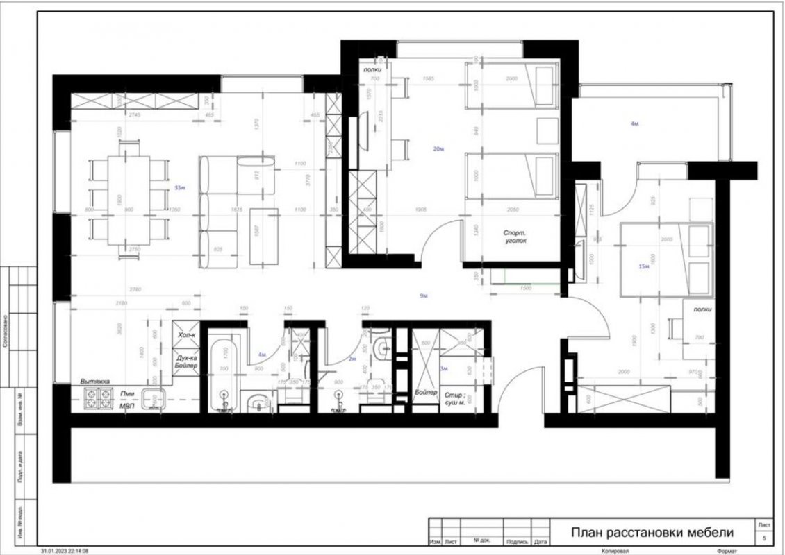
Планування та розведення електрики виконувалися за дизайнерським проєктом. Дивіться фото. Уся дизайнерська проєктна документація надається.
Дуже вдале планування з 2 санвузлами (4 м #178;, 2 м #178;), гардеробом (3 м #178;), кухнею-студією (35 м #178;), 2 спальнями (20 м #178; і 15 м #178;), балконом (4 м #178;), коридором (9 м #178;).
Новий будинок, сучасні ліфти, консьєрж, вид на церкву та дитячі садки.
Квартира підійде як для життя, так і для інвестиції! Object typeSeparate apartment Add Id746827 Add date14.12.2024 Renewal date15.12.2024 Share 107,000 $ Agent: MirKvartir Agency 'Estate.kiev.ua' Message |
|









































