|
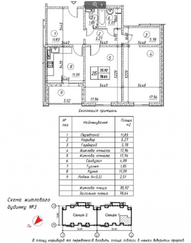
Rooms2
Area78 m²
Kitchen11 m²
Floor15 from 25
ЖК Ревуцький вул. Ревуцького,54А ХарківськийБудинок зданий! 2к квартира 78,64м2 в 3 будинку ЖК Ревуцький Дарницький район, вул. Ревуцького, 54а Комплекс розташований біля озера. Можливий продаж по еОселя. Сучасний новий панельний термобудинок з покращеної панелі. Висота стелі 2,7 метра. Зовнішні утеплення: фасад фасаду HOSTROCK. Біля будинку своя індивідуальна котельня (автономне опалення). Квартира з внутрішнім оздобленням і всім необхідним для життя: -металеві вхідні двері, металопластикові вікна Rehau; - міжкімнатні двері із сучасною фурнітурою - Повний комплект сантехнічного обладнання; -радіатори, розетки та вимикачі; -Шпалери з урахуванням характеристики приміщення та багети на стелі; -лінолеум та пластикові плінтуси; -Лічильники води та електроенергії. Обслуговуванням будинку займається компанія Комфорт-майстер (ЖЕК від ДБК). У парадному є консьєрж. Відеоспостереження. До станції метро Харківська – 12 хвилин пішки. Відмінно розвинена інфраструктура: освітні, спортивні та медичні установи, банки, аптеки, ТРЦ Піраміда, Паралель, Billa, Алладін, Novus, Епіцентр. Object typeSeparate apartment Add Id750012 Add date09.04.2025 Renewal date10.04.2025 Share 76,000 $ Agent: MirKvartir Agency 'Estate.kiev.ua' Message |
|



































