|
Площадь20 м²
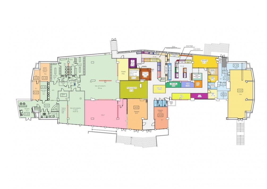
Аренда коммерческое помещение, Ставчены, 20 м2, 5 €/м2Сдаются в аренду коммерческие помещения в торговом центре, Ставчены Площадь помещения 20 м2. Цена за аренду 5 €/м2
Адрес торгового центра: Ставчены, ул. Унирий, 20 Подходит для открытия бутиков, продуктовых магазинов, кафе, пекарен, салонов красоты/парикмахерских, фитнес-центров, обучающих центров, аптек, зоомагазинов, мастерских, химчисток. Свободная планировка под ваши требования. Преимущества: - первая линия - высокая проходимость места - 50 м до остановок общественного транспорта - центр - охрана и видеонаблюдение - склады в аренду рядом с торговым центром Оснащение торгового центра: - евроремонт - все коммуникации (свет, вода, канализация) - система вентиляции - отопление и кондиционирование По вопросам аренды обращайтесь: Телефон: + 373 22 88 55 66 ПоложениеТорговый центр Тип объектаТорговая площадь Фасадный входНет Id объявления621551 Объявление добавлено30.06.2022 Объявление обновлено30.06.2022 Поделиться 100 € Собственник: Skladovka Moldova Сообщение |
|









