|
Площадь150 м²
Этаж2 из 4
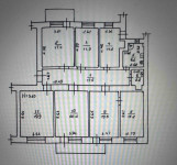
Офис на ул Бунина04569 Офис на ул. Бунина, площадь 150 кв. м. 7 кабинетов, санузел. 2 балкона, 2 этаж, вход из парадной. Хороший ремонт. Кондиционеры, отопление- двух контурный котёл, сигнализация. Цена 1 500$ ПоложениеЧасть жилого здания Тип объектаОфис Фасадный входНет Id объявления765038 Объявление добавлено31.03.2026 Объявление обновлено20.04.2026 Поделиться 1 500 $ АН 'RentMar' Сообщение |
|















