Помещение свободного назначения, 782 м²4 500 USD в месяцОдесса, Слободка, Михаила Грушевского, 001 • На карте Площадь782 м²
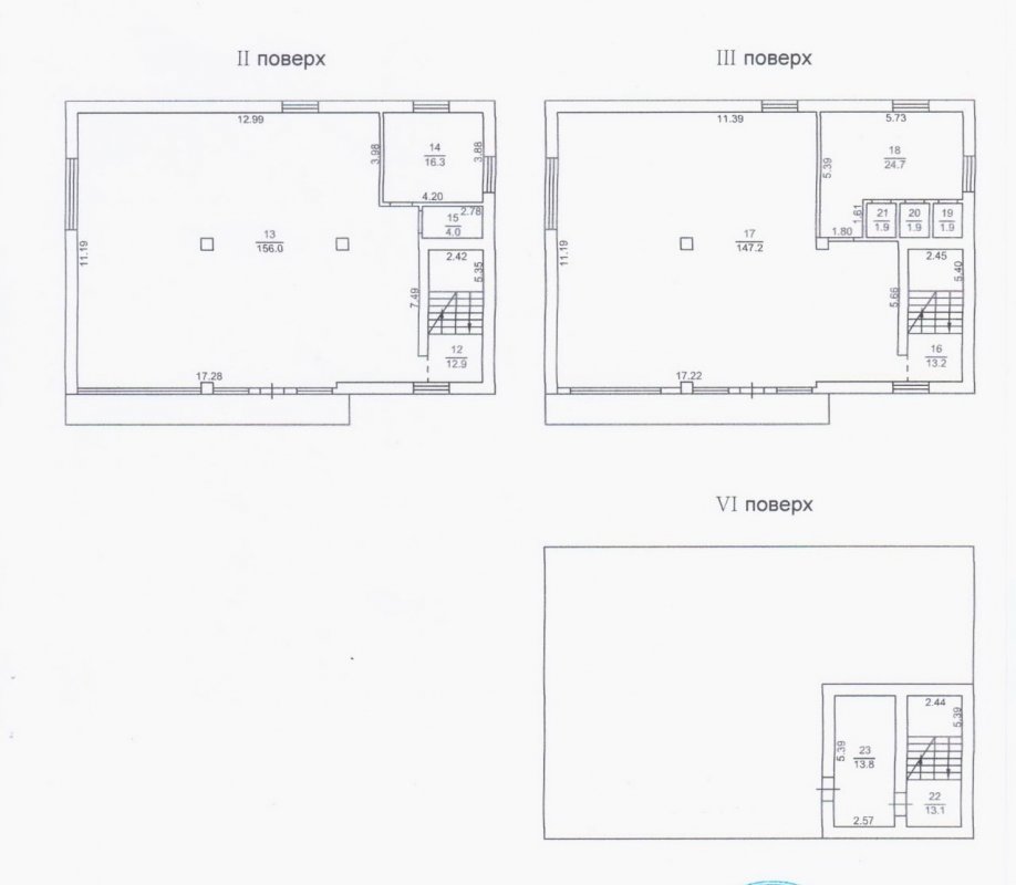
Отдельно стоящее здание ул Михаила Грушевского09364 Отдельно стоящее здание свободного назначения на ул. Михаила Грушевского. Общая площадь 782 кв. м. Размер участка 15 соток. На территорию два въезда, парковка, беседка, озеленение. Планировка: -подвал 182 кв. м. состоит из нескольких помещений, котельной, санузла, так-же есть выход на улицу. -первый этаж 193 кв. м. входная группа, комната охраны, зал свободного назначения (167 кв. м.) и санузел. -второй этаж 190 кв. м. зонирован на кабинеты, есть балкон и санузел. -третий этаж 190 кв. м. состоит из большого зала (147 кв. м.) балкон и раздевалки с душевыми. -четвёртый этаж 27 кв. м. один кабинет и выход на крышу здания. Электричество: мощность 35 квт, три фазы. Есть разводка под генератор. Отопление от твёрдотопливного котла или от системы кондиционирования. Канализация городская. Есть резерв воды на 1 куб, фильтра и гидрофор. Интернет-оптоволокно от Тенет. ПоложениеОтдельно-стоящее здание Тип объектаПомещение свободного назначения Фасадный входДа Тип домаНовостройка Id объявления794771 Объявление добавлено31.03.2026 Объявление обновлено20.04.2026 Поделиться 4 500 $ АН 'RentMar' Сообщение |
|











































