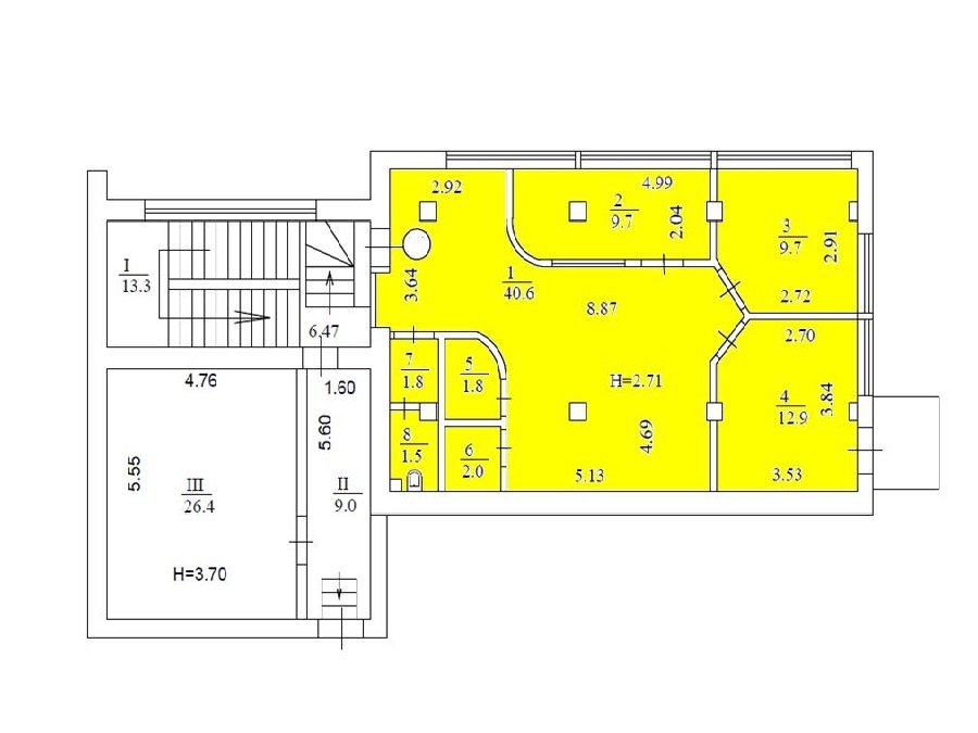
Офис, 80 м²20 000 ГРН в месяц • 0% комиссияКиев, Дніпровський, Березняковская 29 • На карте Березняки Площадь80 м²
Этаж5 из 5
Без Комісії! Оренда офісу 80 м, вул. Березняківська 29Без % Здам офіс, оренда 80 м2, вул. Березняківська 29 Оренда офісу в Дніпровському районі, Березняки Офісний центр, площа 80 кв. м, 3 кабінети Окремий блок, місце під кухню, свій с/в, кондиціонери Офісний ремонт, комп'ютерна розводка по кабінетах Охоронна та пожежна сигналізація, пропускна система Розвинена інфраструктура, магазини, супермаркет Відмінна транспортна розв'язка, м. Осокорки, м. Лівобережна Ціна за 1 кв. м 250 грн/м2 + комунальні. Здає юр. особа з Пдв Прямий договір оренди від власника Вартість оренди 20 000 грн. Відділ оренди Юрій Новіков
P. S. Інші варіанти по Лівому Берегу ПоложениеБизнес центр Тип объектаОфис Фасадный входНет Id объявления797650 Объявление добавлено20.04.2026 Объявление обновлено28.05.2026 Поделиться 20 000 ГРН Агент: Юрий Новиков АН 'Левобережка' Сообщение |
|































