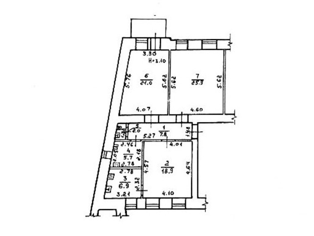
3-комн. кв., 89 м², 2/3 этаж65 000 USD • 3% комиссияОдесса, Приморский, Большая Арнаутская, 125 • На карте Старопортофранковская Комнат3 раздельные
Площадь89 м²
Жилая66 м²
Кухня14 м²
Этаж2 из 3
Арнаутская: продам перспективную 3к квартиру в красивом доме в центре!Большая Арнаутская / Старопортофранковская, продам квартиру, расположенную на 2 этаже красивого и крепкого 3-ехэтажного старинного дома, 89/66/7 кв. м, три шикарные раздельные комнаты (26 + 21 + 19 кв. м), кухня с возможностью увеличения до 14 кв. м, балкон, сан. узел тоже можно увеличить до 14 кв. м превратив в его в красивейшую ванную комнату, высота потолков 3,2 метра, правильная и удобная планировка, автономное отопление и горячая вода (АГВ и колонка), ухоженная фасадная парадная с мраморной лестницей, просторная и очень перспективная квартира под ремонт и реализацию Ваших фантазий и идей в отличном районе в самом центре города! БалконДа, 1 ЛоджияНет Окна выходятВо двор, На улицу Раздельный санузелНет Совмещённый санузелДа, 1 РемонтБез ремонта ОтоплениеАГВ Горячая водаКолонка Гараж или паркингНет Тип объектаОтдельная квартира Тип проектаБельгийка ПандусНет Id объявления700984 Объявление добавлено25.02.2026 Объявление обновлено23.04.2026 Поделиться 65 000 $ Агент: Алексей Красотов АН '"Александр-N"' Сообщение |
|



































