|
Комнат4
Площадь110 м²
Участок6 сот.
Этажей2
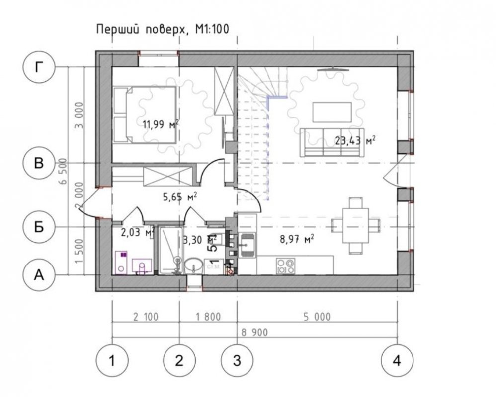
Продаж приватного будинку 110 кв. м, СТ Труд с. ПухівкаПродається приватний будинок в с. Пухівка СТ Труд. Ділянка – 6 соток. Площа будинку - 110 м. кв., 1 пов. + мансарда. Затишне місце, до Десни 10 хвилин пішки (чудовий піщаний пляж), до Києва 20-25 хвилин машиною (20 км), нова дорога. Рік будівництва – 2021. Отриманий дозвіл на початок будівництва. Зовнішні мережі та благоустрій: Електрика – 3 фази, 25 А, багатотарифний лічильник. Вода - повністю обладнана свердловина, 54 метри (бучак), додатково передбачене розміщення автоматики в будинку. Каналізація - бетонний каналізаційний септик на дві камери (обслуговування не потребує, розрахований для 4-6 персон постійного проживання). Територія огороджена, самовідкатні ворота дистанційного керування (шир. 5 м). Будинок: Стрічковий фундамент (утеплення Еппс 50 мм), бетонна підлога по ґрунту, зовнішні стіни – керамоблок 38 мм, бетонне перекриття, перегородки (1-й пов.) – цегла, вікна – 5-кам. профіль тонований Wds 90 мм, подвійні енергозберігаючі склопакети, покрівля – бітумна черепиця Техноніколь, якісні вхідні двері із терморозривом. Завезені матеріали для гідроізоляції та утеплення підлоги 1-го пов. Влаштована пасивна вентиляція (цегляна вентиляційна труба). Часткова штукатурка 1-го пов. Внутрішні мережі: Розведена електрика 1-го поверху, виведений 2-й пов., зібраний і розключений електрощит (автоматика Hager). Каналізація влаштована, підключена до септика, змонтована фанова труба. Завезені матеріали для системи водопостачання та опалення (із радіаторами включно). Проектна документація КБ, АР, ОВ, ВК, візуалізація фасаду в наявності. Будували для себе. Збудовано якісно, для комфортного проживання та експлуатації. Тип объектаДом Id объявления701330 Объявление добавлено12.06.2024 Объявление обновлено12.06.2024 Поделиться 50 000 $ Собственник: Ірина Сообщение |
|






















