|
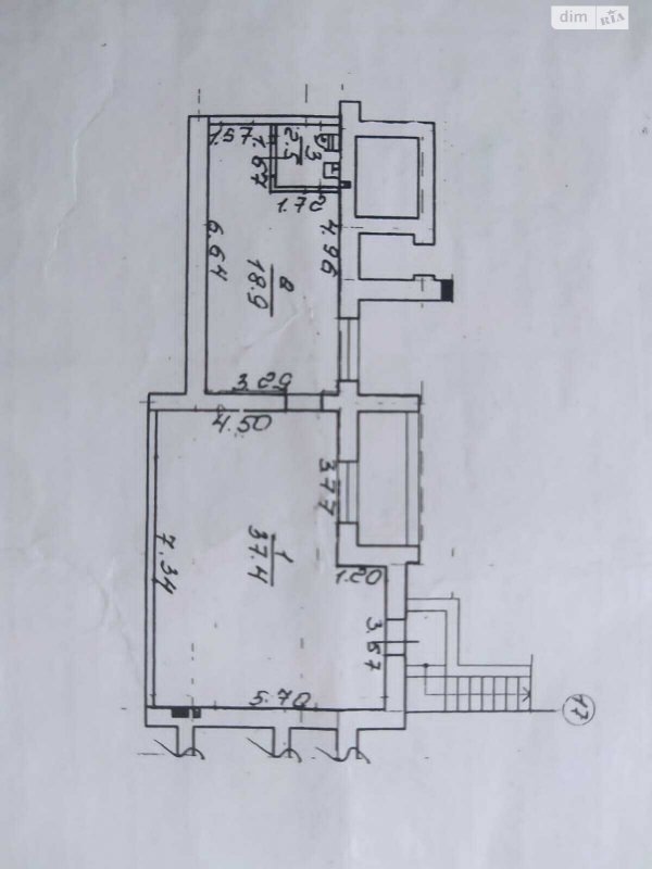
Площадь59 м²
Полезная38 м²
Этаж1 из 10
Продам офис с ремонтом и мебелью на ДидрихсонаПродам офис на Дидрихсона, подсобные помещения, сделан капитальный ремонт, встроенная мебель, есть охранная и пожарная сигнализация, возможно под любую комерческую деятельность. ПоложениеЧасть жилого здания Тип объектаОфис Фасадный входНет Id объявления706880 Объявление добавлено25.03.2026 Объявление обновлено06.04.2026 Поделиться 28 000 $ Агент: Людмила АН '" Президент"' Сообщение |
|

























