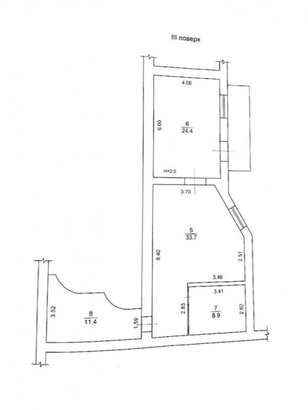
3-комн. кв., 125 м², 2/2 этаж115 000 USD • 3% комиссияОдесса, Приморский, Екатерининская, 20 • На карте Греческая Комнат3 раздельные
Площадь125 м²
Жилая53 м²
Кухня32 м²
Этаж2 из 2
Екатерининская: оригинальная двухъярусная 3к квартира в самом центре!Екатерининская / Греческая, продам двухъярусную квартиру, расположенную на 2 этаже крепкого старинного 2 этажного дома, 125/53/34 кв. м, две просторные раздельные спальни и шикарная кухня-гостиная, два балкона, сан. узел с большой гидромассажной душевой кабиной, удобная дубовая внутренняя лестница, автономные отопление и горячая вода (двухконтурный котел), бак с аварийным запасом воды, кондиционеры, дубовый паркет, полностью укомплектована мебелью и бытовой техникой, хороший капитальный ремонт с заменой всех коммуникационных систем, удивительная и оригинальная квартира в историческом центре города в двух шагах от Дерибасовской! БалконДа, 2 ЛоджияНет Окна выходятВо двор, На улицу Раздельный санузелНет Совмещённый санузелДа, 1 РемонтЕвро ОтоплениеДвухконтурный котёл Горячая водаДвухконтурный котёл Гараж или паркингНет Тип объектаОтдельная квартира Тип проектаСтарый фонд ПандусНет Id объявления710949 Объявление добавлено25.02.2026 Объявление обновлено23.04.2026 Поделиться 115 000 $ Агент: Алексей Красотов АН '"Александр-N"' Сообщение |
|























































