Дом, 225 м², 2 этажа, 6 комнат, 5 спален, 10 сот.195 000 USD • 4% комиссияДнепр, АНД, Балканский переулок • На карте Довгыша Комнат6 раздельные
Спален5
Площадь225 м²
Жилая109 м²
Кухня15 м²
Участок10 сот.
Этажей2
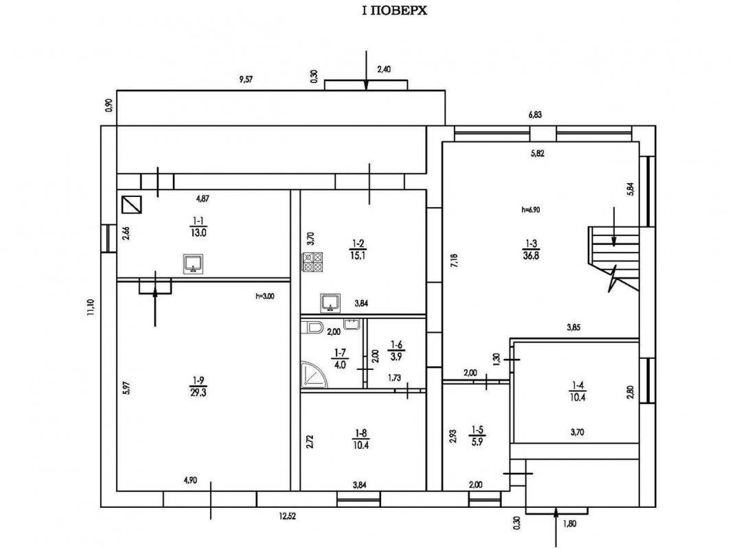
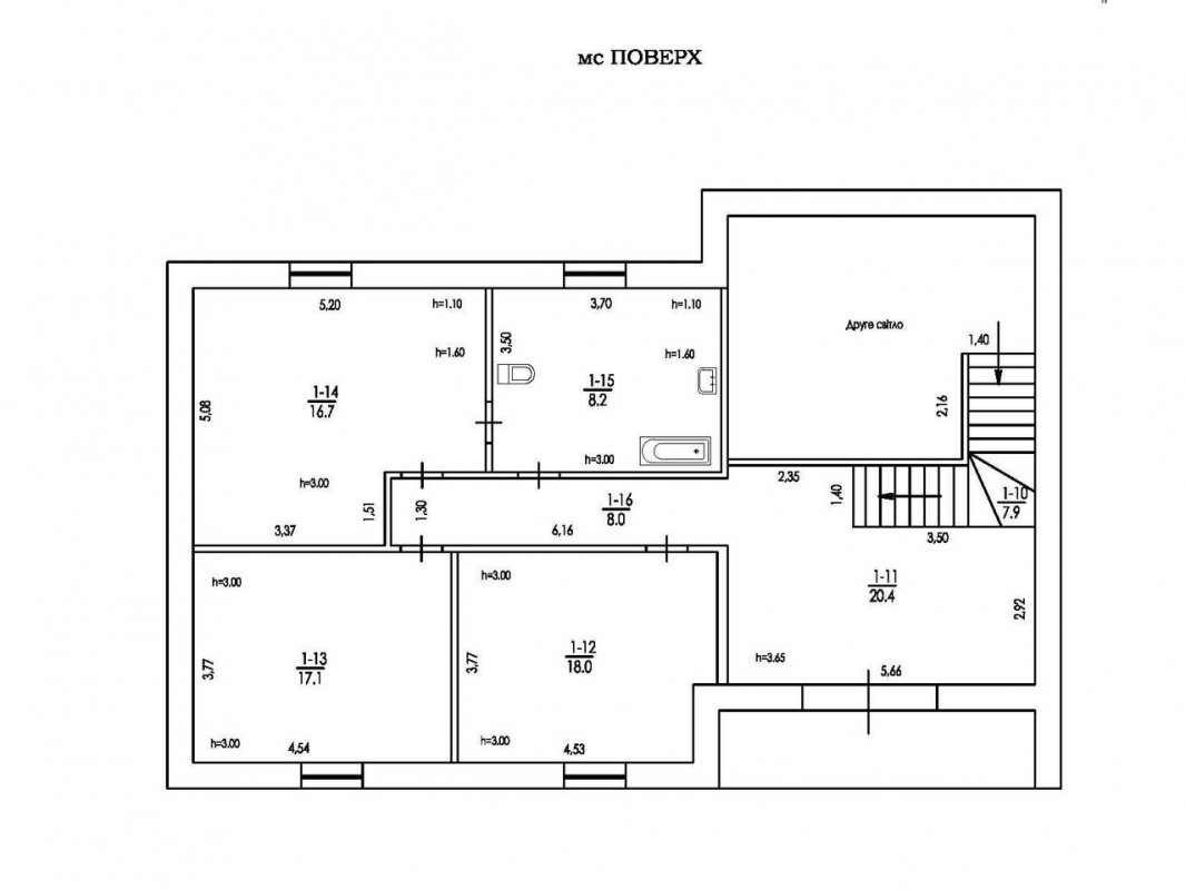
Продажа дома для комфортного проживания семьиДвухэтажный, мансардного типа с чердаком, 2010 года постройки. Материал постройки: сакский ракушечник, толщина кладки - 400 мм, с наружным утеплением пенопластом 100 мм, с отделкой; ж/б перекрытие между 1 и 2 этажом; капитальная лестница на 2-й этаж (отделка – бук); крыша – деревянный каркас, гидро-пароизоляция, утепление – 200 мм, Осв – плита, битумная черепица. Дом с архитектурной изюминкой – второй свет, отделка в классическом стиле. Планировка: 1 этаж: крыльцо, прихожая, большая светлая гостиная, кухня- столовая с выходом на террасу, две раздельные комнаты, санузел с душем, отдельное помещение - прачечная; 2 этаж (мансардный): антресоль с выходом на лоджию, три раздельные комнаты (из одной – непосредственный выход в санузел), просторный санузел с ванной, выход на чердак (складная чердачная лестница, площадь чердака – 5*16 = 80 м. кв). Отапливаемый гараж 29 кв. м, со стеллажами и настенными кронштейнами для хранения автошин, роллетные ворота с электроприводом, дистанционный пульт управления. Перед гаражом – красивый деревянный навес на 2 авто (6*6 м), накрыт ударопрочным, не пропускающим ультрафиолет поликарбонатом. Въезд – откатные ворота с электроприводом, дистанционный пульт управления. Отопление и горячая вода: двухконтурный газовый котел с закрытой камерой сгорания, 30 квт. Стальные радиаторы + теплый водяной пол на первом этаже (кухня-столовая, санузел). Система подачи и подготовки воды: скважина, насосная станция, укомплектованная частотным регулятором оборотов - в доме всегда стабильное давление воды; механический фильтр; система смягчения воды для домашнего пользования, на кухне – фильтр обратного осмоса (подготовка питьевой воды). Канализация: 3 выгребные ямы, связанные между собой по принципу септика (перелив). Ассенизация 1 раз в полгода (для семьи из 5 человек). Действующая солнечная электростанция мощностью 15 квт (трехфазный «сетевой» инвертор, полностью перекрывает собственное потребление + излишки на продажу по «зеленому» тарифу, зафиксированному до 2030 г). Доход от продажи излишков полностью перекрывает затраты на газ. + однофазны «гибридный» инвертор с аккумулятором на 10 квт (резервное питание электричеством всех необходимых потребителей в период отключений, до 24 часов (зависит от уровня нагрузки) Охранная сигнализация с действующим договором. Автоматическая подземная система полива газона, плодоносящий сад. Имеется вольер для собаки, фундамент под баню. Приватизированный земельный участок 10 соток. Полный пакет документов на куплю-продажу. Продажа в формате "заходи и живи". Дом ожидает нового владельца! Подробнее по телефону. Тип объектаДом Название коттеджного посёлкаБерезановка Id объявления744354 Объявление добавлено25.01.2026 Объявление обновлено09.02.2026 Поделиться 195 000 $ Агент: Анна Фортеця Сообщение |
|

































































































