|
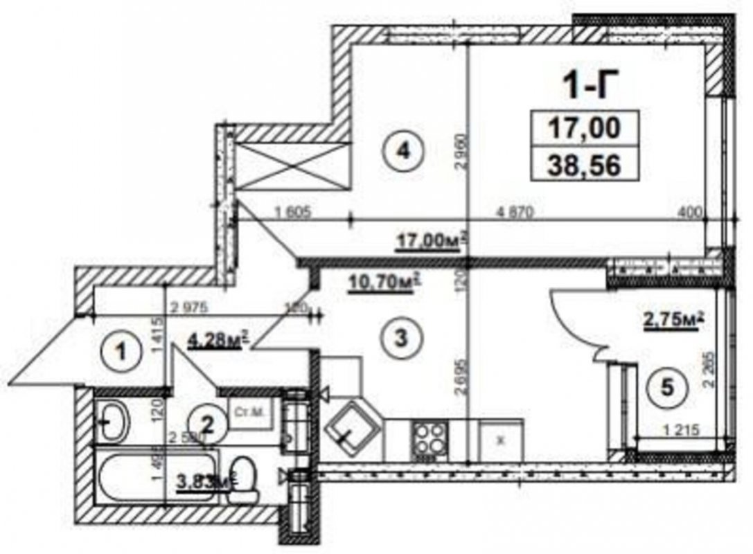
Комнат1
Площадь38 м²
Кухня11 м²
Этаж15 из 26
Продам квартиру в Жк Урлівський-1/Жк Урловский-1. Причальная 11Продам квартиру в ЖК Урлівський 1. Новий комфортний ЖК на Осокорках, поруч ТРЦ RiverMall,чудова транспорта розв‘язка(Міст Патона та Південний міст).
Квартира знаходиться в 5 будинку на 15 поверху. Дуже хороше планування,можна переробити під себе,наприклад зробити маленьку гардеробну і продовжити кухню за рахунок лоджії.
ЖК знаходиться на стадії активного будівництва. Тип объектаОтдельная квартира Id объявления746883 Объявление добавлено15.12.2024 Объявление обновлено16.12.2024 Поделиться 43 000 $ Агент: MirKvartir АН 'Estate.kiev.ua' Сообщение |
|











