|
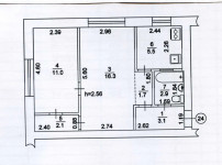
Комнат2
Площадь43 м²
Кухня6 м²
Этаж1 из 5
2-к ул. Ив. СергиенкоКвартира на 1 этаже 5-этажного кирпичного с ж/б перекрытиями дома (ул. Пластова бывшая Ив. Сергиенко). Расположена в тихом, уютном районе с развитой инфраструктурой в 15 мин. ходьбы от ст. м. «Черниговская». Общая площадь квартиры 43,0 кв. м. Комнаты смежные, санузел смежный. Квартира меблирована. Есть газовая плита. Окна выходят на чистый, зеленый двор с цветниками, деревьями, клумбами. Перед парадным широкая асфальтированная дорога. Требуется капремонт в ванной комнате. Квартира свободна и пригодна для проживания. План-схема квартиры прилагается Тип объектаОтдельная квартира Id объявления747426 Объявление добавлено30.03.2025 Объявление обновлено31.03.2025 Поделиться 40 000 $ Агент: MirKvartir АН 'Estate.kiev.ua' Сообщение |
|













