4-комн. кв., 63 м², 5/5 этаж50 000 USD • 5% комиссияОдесса, Малиновский, Генерала Петрова, 58 • На карте Ицхака Рабина Комнат4
Площадь63 м²
Жилая45 м²
Кухня7 м²
Этаж5 из 5
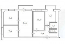
Продается 4-комнатная комнатная ул. Генерала Петрова/ РадостнаяПроект «хрущевка». Общая площадь – 63м. Кухня увеличена, гостиная с камином, рабочий кабинет, две раздельные спальни. Застекленный балкон. Раздельный санузел. Центральное отопление. Газ. В квартире частично остается мебель. Утепление внутри квартиры и по фасаду. Тамбур на три квартиры. Чистая парадная. Новая крыша. Тихий двор. Рядом две школы, детский сад, супермаркеты, остановка транспорта. БалконДа, 1 Окна выходятВо двор Раздельный санузелДа, 1 РемонтКапитальный ОтоплениеЦентральное Горячая водаБойлер Гараж или паркингНет Тип объектаОтдельная квартира Тип проектаХрущёвка ПандусНет Id объявления760998 Объявление добавлено16.01.2026 Объявление обновлено06.02.2026 Поделиться 50 000 $ Агент: Гайдай Ірина ВасильЇвна АН '"ТВ-Дом"' Сообщение |
|































