Дом, 113.5 м², 2 этажа, 4 комнаты, 5 сот.7 600 000 РУБСевастополь, Нахимовский, 2-я Линия • На карте Комнат4
Площадь113.5 м²
Жилая80 м²
Кухня25 м²
Участок5 сот.
Этажей2
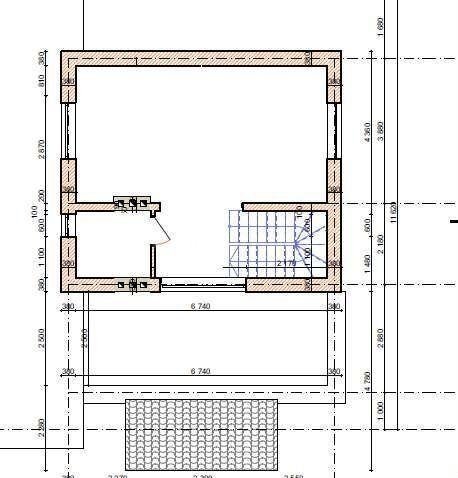
Об объекте Продаётся двухэтажный кирпичный дом общей площадью 113,5 кв.м. Просторная планировка включает 4 комнаты, уютную кухню и светлые жилые зоны. Жилая площадь около 80 кв.м. Толстые стены и монолитный каркас обеспечивают надежность и хорошую теплоизоляцию. Дом имеет возможность перепланировок и готов к дальнейшему доведению под ваш стиль. Установлены энергосберегающие окна, и входные металлические двери. Площадь участка, планировка и парковка Участок 5 соток, на котором возможна дальнейшая планировка. Удобное размещение парковочного места рядом с домом. В доме есть возможность сделать санузел внутри, что обеспечивает комфорт повседневной жизни. Светлая гостиная плавно соединена с кухней, что удобно для семейного отдыха и приема гостей. Коммуникации и инженерия Водоснабжение — скважина, канализация — септик, электричество — есть. Отопление — предусматривает установку твердотопливного котёла. Газ — перспектива подключения в будущем. Заведен интернет. Особенности покупки Ипотека возможна. Ремонт требуется — подготовьте план преображения под ваш стиль и сроки. Дом подходит для семьи, ищущей простор и автономию. Звоните прямо сейчас, что бы договориться о просмотре и выяснить все детали! Тип объектаДом Id объявления763655 Объявление добавлено17.10.2025 Объявление обновлено04.05.2026 Поделиться 7 600 000 ₽ Агент: Виктория Николаевна АН 'Херсонес Недвижимость' Сообщение |
|





















