|
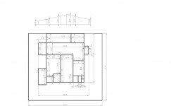
Площадь630 м²
Этаж1 из 1
Продається виробничо-складське приміщення!.Продається виробниче приміщення! Локація:село. Озера 19 км від Києва, в 5 км від Гостомеля, в 300-400 метрів житловий сектор. Площа: 630 м2. Земельна ділянка: 12.24 сотки . Матеріали будівництва: Стіни цегла, дах - шифер з утепленням, підлога - бетон, двері - металопластикові, ворота секційні розміром 3500*4100. Висота стелі: від 2, 8 м до 5, 3 м. Комунікації: Електрика - 20 кіловат (є можливість збільшення), підведено газ середнього тиску, яма септик - 12 м.куб. Опалення: Теплогенаратор - Піролізний котел 95 кв, теплі підлоги, фанкойли, алюмінієві батареї, чавунні батареї. Витрати на опалення в місяць 200$, при заданій температурі в приміщенні 20 градусів. Розводка пневматичної магістралі по всьому приміщенню. Припливно-витяжна вентиляція з фільтрами і підігрівом. Зручності: Є душові та туалет, кімната відпочинку, кімната для охорони. Безпека: Відеоспостереження, охоронна сигналізація. Можливе перепланування, несучі стіни тільки по периметру будівлі. Розташування: Частина будівлі; Комунікації: Електрика, Газ, Каналізація септик, Скважина; Тип объектаПомещение свободного назначения Фасадный входНет Id объявления794271 Объявление добавлено04.02.2026 Объявление обновлено22.04.2026 Поделиться 150 000 $ Агент: Валентин Анатольевич АН 'IPrealty' Сообщение |
|

























