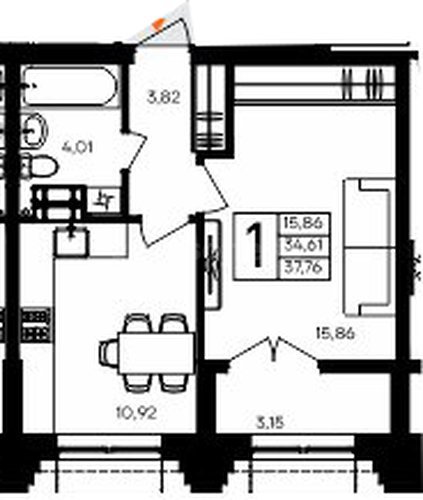
1-комн. кв., 37.76 м², 2/9 этаж8 307 200 РУБСевастополь, Балаклавский, Мате Залки ,, 86 • На карте Комнат1
Площадь37.76 м²
Кухня10.92 м²
Этаж2 из 9
Жилой комплекс "Семисчастье" в Севастополе - идеальное место для вашего комфортного проживания на берегу Черного моря. Расположенный в живописном районе города, он предлагает широкий выбор квартир различной планировки и ценовой категории. Уютные квартиры с видом на море и горы, современная инфраструктура, благоустроенная территория - все это делает "Семисчастье" идеальным выбором для тех, кто ценит комфорт и качество. Звоните, чтобы узнать больше о наших предложениях и стать одним из счастливых обладателей квартиры в жилом комплексе "Семисчастье". В продаже имеются квартиры в жилом комплексе "Семисчастье" премиум-класса. Общая площадь составляет 37,7606 кв.м., при этом кухня - 10,92 кв.м. Высота потолков достигает 2,7 м. Полная сумма в договоре, прямая продажа! Семейная ипотека и материнский капитал! Без комиссии, все оплачивает застройщик! Если покупаете через нашу компанию, осуществляем приёмку квартиры! ❌ С агентствами не сотрудничаем, просьба не звонить!
Тип объектаОтдельная квартира Тип домаНовостройка Id объявления795512 Объявление добавлено10.03.2026 Объявление обновлено10.03.2026 Поделиться 8 307 200 ₽ Агент: Менеджер АН 'Херсонес Недвижимость' Сообщение |
|













