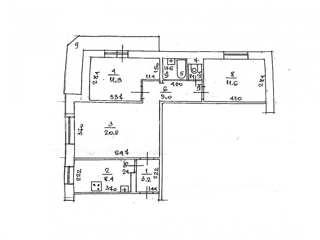
3-комн. кв., 65 м², 13/16 этаж58 000 USD • 5% комиссияОдесса, Киевский, Инглези, 3/3 • На карте Таирова Комнат3 раздельные
Площадь65 м²
Жилая45 м²
Кухня8.5 м²
Этаж13 из 16
Инглези: продам красивую квартиру в доме 1996 г. напротив Сити Центра!Небесной Сотни / Инглези, продам красивую квартиру, расположенную на 13 этаже теплого кирпичного 16-этажного дома 1996 года постройки, 65/45/8,5 кв. м, три комнаты, одна проходная гостиная 21 кв. м и две раздельные уютные спальни, удобная кухня, сан. узел раздельный с ванной, угловой балкой, хороший современный ремонт в светлых тонах, очень комфортная планировка, шикарный паркет, окна и двери – покрытое лаком натуральное дерево, полностью укомплектована мебелью и бытовой техникой, установлены бойлер и кондиционер, просторная великолепная квартира в невероятно удобном районе в начале Таирова напротив ТРЦ «Сити Центр»! БалконДа, 1 ЛоджияНет Окна выходятВо двор, На улицу Раздельный санузелДа, 1 Совмещённый санузелНет РемонтЕвро ОтоплениеЦентральное Горячая водаБойлер Гараж или паркингНет Тип объектаОтдельная квартира Тип проектаМонолитно-кирпичный ПандусНет Id объявления796373 Объявление добавлено28.03.2026 Объявление обновлено23.04.2026 Поделиться 58 000 $ Агент: Алексей Красотов АН '"Александр-N"' Сообщение |
|





































