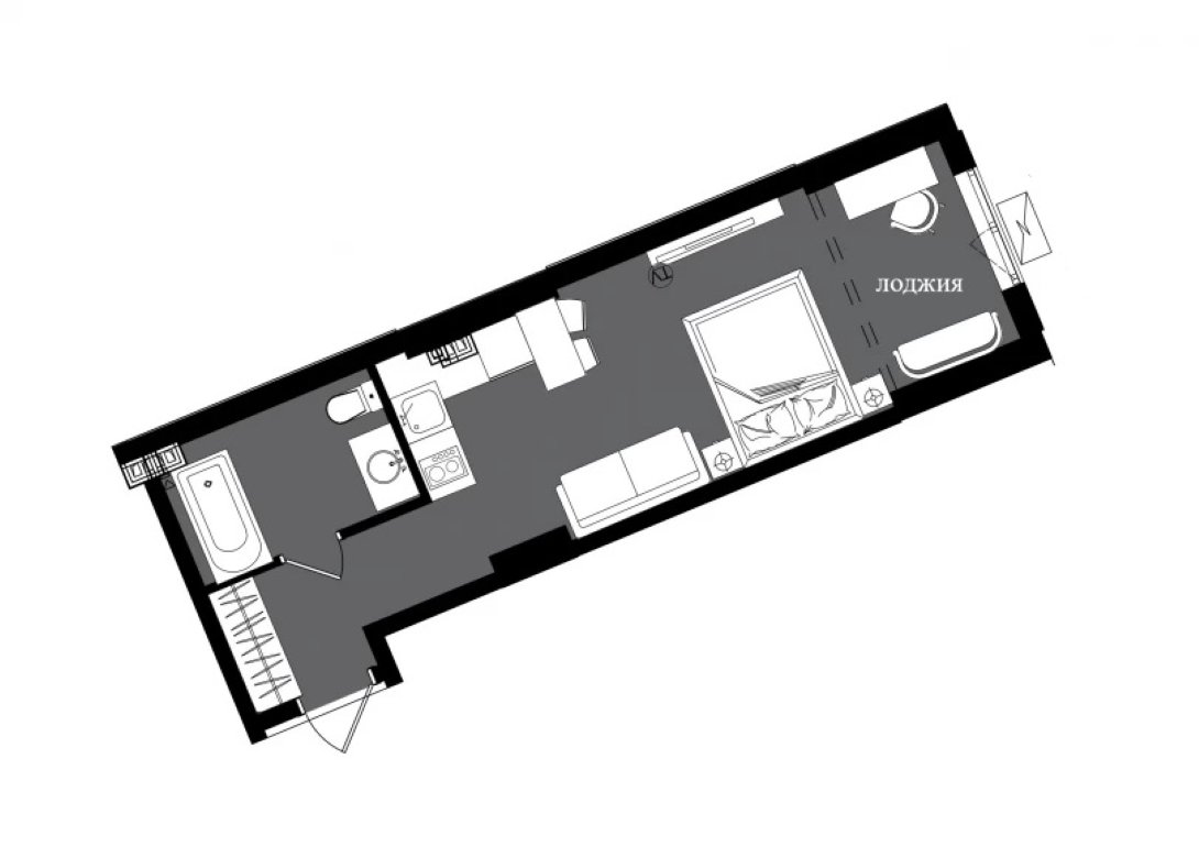
1-комн. кв., 29 м², 26/26 этаж39 500 USD • 5% комиссияОдесса, Киевский, Дача Ковалевского, 5 • На карте 16-я ст. Большого Фонтана Комнат1
Площадь29 м²
Этаж26 из 26
ЖК «Посейдон»: продам квартиру в новом доме у моря на 16 ст. Фонтана!Дача Ковалевского / Золотой берег, продам квартиру-студию, расположенную на 26 этаже нового дома ЖК «Посейдон» от известной своим качеством строительства компании «Гефест», общая площадь 29 кв. м, квартира студийной планировки, комната, кухня и лоджия объедены в одно пространство, окна на город, на шикарные закаты, современный жилой комплекс с подземным паркингом, красивой и охраняемой придомовой территорией, развитой собственной инфраструктурой, позволяющей комфортно жить даже не покидая пределы комплекса, очень перспективная квартира без отделочных работ в 3 минутах от моря и пляжа «Золотой берег» и потрясающей набережной в курортном районе Одессы на 16-й станции Большого Фонтана! БалконНет ЛоджияДа, 1 Окна выходятНа улицу Раздельный санузелНет Совмещённый санузелДа, 1 РемонтОт строителей ОтоплениеКрышная котельная Горячая водаБойлер Гараж или паркингПаркинг Тип объектаОтдельная квартира Тип проектаМонолитно-каркасный ПандусЕсть Название ЖКПосейдон Id объявления797520 Объявление добавлено25.05.2026 Объявление обновлено27.05.2026 Поделиться 39 500 $ Агент: Алексей Красотов АН '"Александр-N"' Сообщение |
|















