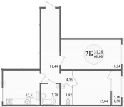
2-комн. кв., 66.66 м², 12/12 этаж13 065 360 РУБСевастополь, Гагаринский, Колобова ,, 44 • На карте Комнат2
Площадь66.66 м²
Кухня12.31 м²
Этаж12 из 12
В Севастополе, на живописном побережье Черного моря, расположен жилой комплекс «Александрия» — превосходный вариант для комфортного и удобного проживания. В этом районе города представлен разнообразный ассортимент квартир, отличающихся планировками и стоимостью, что позволяет каждому подобрать подходящий вариант. Жителям комплекса доступны современные удобства и обустроенная территория, а из окон открываются живописные виды на горы и море. Если вы стремитесь к сочетанию качества и уюта, «Александрия» станет оптимальным выбором. Свяжитесь с нами, чтобы получить подробную информацию и стать счастливым владельцем недвижимости в этом комплексе. В продаже имеются квартиры в жилом комплексе "Александрия" комфорт-класса. Общая площадь составляет 66,66 кв.м., при этом кухня - 12,31 кв.м. Высота потолков достигает 2,7 м. Полная сумма в договоре, прямая продажа! Семейная ипотека и материнский капитал! Без комиссии, все оплачивает застройщик! Если покупаете через нашу компанию, осуществляем приёмку квартиры! ❌ С агентствами не сотрудничаем, просьба не звонить! Тип объектаОтдельная квартира Тип домаНовостройка Id объявления798310 Объявление добавлено29.04.2026 Объявление обновлено29.04.2026 Поделиться 13 065 360 ₽ Агент: Менеджер АН 'Херсонес Недвижимость' Сообщение |
|















