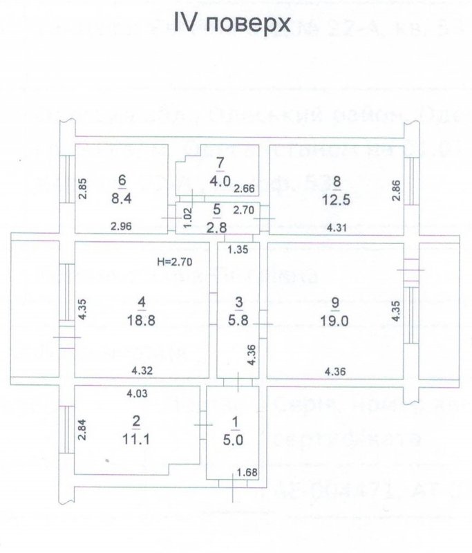
4-комн. кв., 95.4 м², 4/10 этаж82 000 EURОдесса, Хаджибейский (Малиновский), Петрова Генерала , 22а • На карте Комнат4 раздельные
Площадь95.4 м²
Жилая58.7 м²
Кухня11.1 м²
Этаж4 из 10
Продам 4 комнатную квартиру. Центр Черемушек. Генерала Петрова / Исполком.Програми/Сертифікат. Продаж 4 кімнатної квартири на Черьомушках. Вулиця Євгена Танцюри (Генерала Петрова) / Виконком. 4/10. Спецпроект 2008 року побудови, Газ, закрита територія. другий будинок від дороги. 95,4 кв.м.. Капремонт. Вбудована італійська кухня з натурального дерева з технікою Bosch (холодильник та посудомийна). Три окремі спальні, вітальня з виходом на лоджію. Підлога - натуральна дошка. Підігрів підлоги на кухні та в коридорі. Італійська сантехніка. У будинку бомбосховища. Джерело безперебійного харчування на 7 діб. Зручне розташування в пішій доступності супермаркет, ринок Черьомушки, фітнес клуб Шторм, парк Горького. Транспорт у будь-яку точку міста.
Программы / Сертификат. Продажа 4 комнатной квартиры на Черемушках. Улица Евгения Танцюры (Генерала Петрова) / Исполком. 4/10. Спецпроект 2008 года постройки, Газ, закрытая территория. второй дом от дороги. 95,4 кв.м.. Капремонт. Встроенная итальянская кухня из натурального дерева с техникой Bosch (холодильник и посудомоечная). Три отдельных спальни, гостиная с выходом на лоджию. Пол - натуральная доска. Подогрев полов на кухне и в коридоре. Итальянская сантехника. В доме бомбоубежище. Источник бесперебойного питания на 7 суток. Удобное расположение, в пешей доступности супермаркет, рынок Черемушки, фитнес клуб Шторм, парк Горького. Транспорт в любую точку города. Тип объектаОтдельная квартира Id объявления798352 Объявление добавлено29.04.2026 Объявление обновлено30.04.2026 Поделиться 82 000 € Агент: Янова Тетяна Миколаївна АН 'БЕСТТ НЕДВИЖИМОСТЬ' Сообщение |
|





































