|
Кімнат4
Площа92 м²
Ділянка11 сот.
Поверхів2
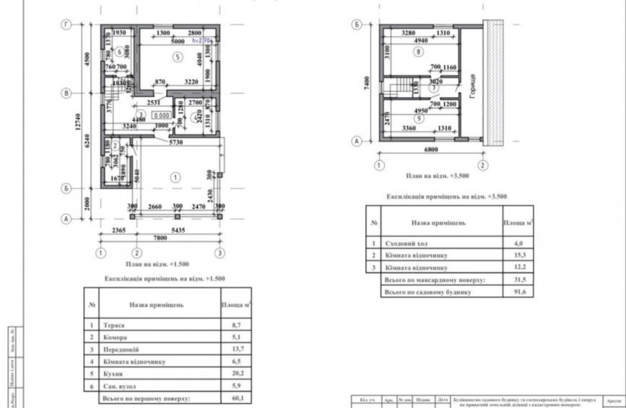
Продам двоповерховий будинок, 25 км від КиєваПродам двоповерховий будинок, 25 км від Києва в с. Рожівка, СТ Академік. Купляли для себе і робили все на совість для подальшого постійного проживання, але життєві плани змінилися тому продаємо. Нами була: - розчищена територія 11,2 соток. - очищення будинку від не пригідних речей попередніх власників, два трактори сміття. - зроблена тепла підлога по всьому першому поверху, встановлений електрокотел. - замінені всі вікна на якісні металопластикові Alm Plast Deluxe зимою не холодно, влітку не жарко, та встановлені відливи, та москітки. - зроблена свердловина 30 метрів з усім обладнанням глибинний насос Optima (Польща) і бак Італійський на 100 л, розведений полив до тераси та по центру ділянки. Також є сезонна вода заведена від центрального каналу на вході зліва, якою можна поливати квіти, дерева, рослини. - обладнана власна котельня в якій котел і електрощиток. - зроблені всі сантехнічні виводи в сан вузлі, кухні та котельні. - замінений лічильник світла - день/ніч фірми Nic, та встановлений більш потужний автомат 32А Legrand. - підведений оптоволоконний швидкісний інтернет Бест лайн, wi-fi. - встановлена охоронна система Ajax підключена до Альфа охорони, плюс є місцева охорона. - на ділянці встановлена камера відеоспостереження. По всьому кооперативу теж є камери у сусідів. І ще багато всього навіть не згадаю. Будинок метраж та планування видно на фото, ведений в експлуатацію всі документи в нормі. Ділянка на своєму місці є винос 4 точок і висновок експерта. 0 поверх: - власний погріб холодний з вентиляцією, висота від полу до стелі десь 2,7 м. 1 поверх: - котельня комора 5,1 м2. - хол передпокій 13,7 м2. - кухня-вітальня 20,2 м2 там же є піч, яка обігріває дві кімнати. - кімната відпочинку 6,5 м2 - санвузол велика ванна кімната 5,9 м2 (інсталяція вже встановлена, зроблений вивід під гігієнічний душ, під пральну та рукомийник (всі труби шитий поліетилен остання новинка в сантехніці). - сходи дерев'яні на другий поверх 4 м2. Всього по першому поверху 60,1 м2 2 поверх: - дві великі спальні, може бути дитяча і доросла 15,3 м2 та 12,2 м2. - велика комора (під скосом даху, можна зробити гардеробну). Всього по мансардному поверху 31,5 м2. Всього по будинку 91,6 м2, а з горищем всі 120 м2. Висота стелі 2,70 м. На кухні є можливість підключати безпечно два газових балони до плити (плита старенька є). Також заїзд на територію де розташовані будинки обладнаний автоматичними воротами є пульт і з телефону відчиняються, камерами відеонагляду на в’їзд та виїзд. Є власна тераса близько 27 м2. Територія майже 11,2 сотки. На вулиці є хозприміщення і вуличний туалет, та накриття типу бесідки або дроварня. Гарна природа пташки співають. Багато плодових дерев: груша, дві яблуні, черешня рання дуже смачна, дві вишні, ліщина, шовковиця, горіх (три мішки в сезон збирали). Все плодоносить. Кущі та квіти. Всі сусіди адекватні, напроти навіть продають домашні огірки, помідори, полуницю, ожину по сезонно. Також до садів привозять м’ясо, молоко. Є вивіз сміття, є місцева група у якій про все попереджають. Магазин в кооперативі та ще один у сусідньому, чуть далі є будівельний магазин, кав’ярня, Азс. За додатковою інформацією - пишіть, дзвоніть. Від власника. Три роки документам буде 10.2024 тоді й готові будемо продати. Тип об'єктуБудинок Id оголошення700484 Оголошення додано24.05.2024 Оголошення оновлено24.05.2024 Поділитися 53 000 $ Власник: Сергій Повідомлення |
|
























